EasyManua.ls Logo

THOMSON 510059 - Page 94

THOMSON 510059
Print Icon
To Next Page IconTo Next Page
To Next Page IconTo Next Page
To Previous Page IconTo Previous Page
To Previous Page IconTo Previous Page
Loading...
KIT DI ALIMENTAZIONE A ENERGIA SOLARE UNIVERSALE 12-24V
IT
10
www.mythomson.com
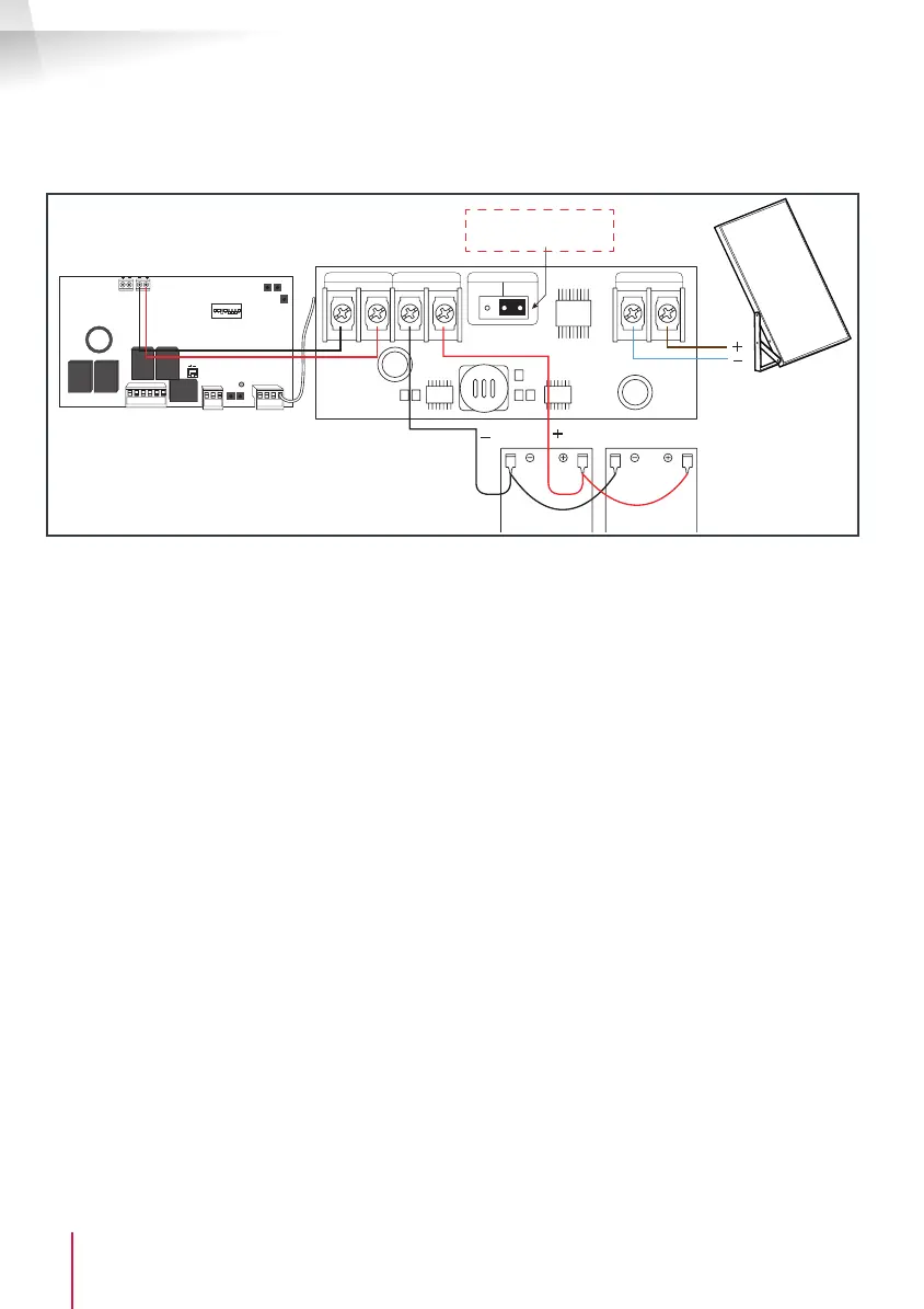
D - COLLEGAMENTO GENERALE
E - USO CON MOTORI DI ALTRE MARCHE
12V SW200D2S Collegamento delle batterie in parallelo
Non collegare a SOL - /+ della scheda
OC1
LD1
ON
12345678
DP
OC2
-M2+ -M1+ -Warm+
RF1
RF2 AUTO
+12V
NC
COM
GND
O/C1 O/C2
GND ANT
SOLAR
PANEL
BAT
COM4
MOTORISATION BATTERYVOLTA GE
24V 12V
SOLAR IN
SWITCH SU 12V
batterie
Il presente kit di alimentazione può essere utilizzato anche con motori per cancelli compatibili con
l’alimentazione a energia solare di marchi diversi da quelli della società avidsen.
Tali motori devono tuttavia funzionare esclusivamente con una tensione di 12VDC o 24VDC.
Il presente kit di alimentazione a energia solare non può essere utilizzato con tensioni diverse.
Controllare che la scheda elettronica disponga di un ingresso per batteria di emergenza.
FARE SEMPRE ATTENZIONE A RISPETTARE LA POLARITÀ DEL COLLEGAMENTO.
Per il collegamento del kit di alimentazione a energia solare, fare sempre riferimento al presente manuale.
Per limitare il consumo di corrente è preferibile che la scheda elettronica si metta in stand-by una volta
trascorso un certo lasso di tempo (per maggiori informazioni fare riferimento ai dati tecnici della scheda
elettronica).
In caso di alimentazione a batteria, è possibile che il motore impedisca l’esecuzione di alcune funzioni.
Accertarsi di tale eventualità in caso di impossibilità di utilizzo di determinati accessori e/o funzioni.
In caso di scarica prematura delle batterie, controllare che la scheda elettronica non sia utilizzata
come fonte di alimentazione da nessun accessorio esterno (modulo di comando, pulsantiera esterna
videocitofono, ecc.) e, in tal caso, scollegare la scheda elettronica da tale accessorio.

Table of Contents