EasyManua.ls Logo

TMT XPROG-m - 2.3.13. MC68 HC11 KW1

TMT XPROG-m
35 pages
Print Icon
To Next Page IconTo Next Page
To Next Page IconTo Next Page
To Previous Page IconTo Previous Page
To Previous Page IconTo Previous Page
Loading...
XPROG-m © 2005
TMT
Users manual P/C: 3-001-0001
25
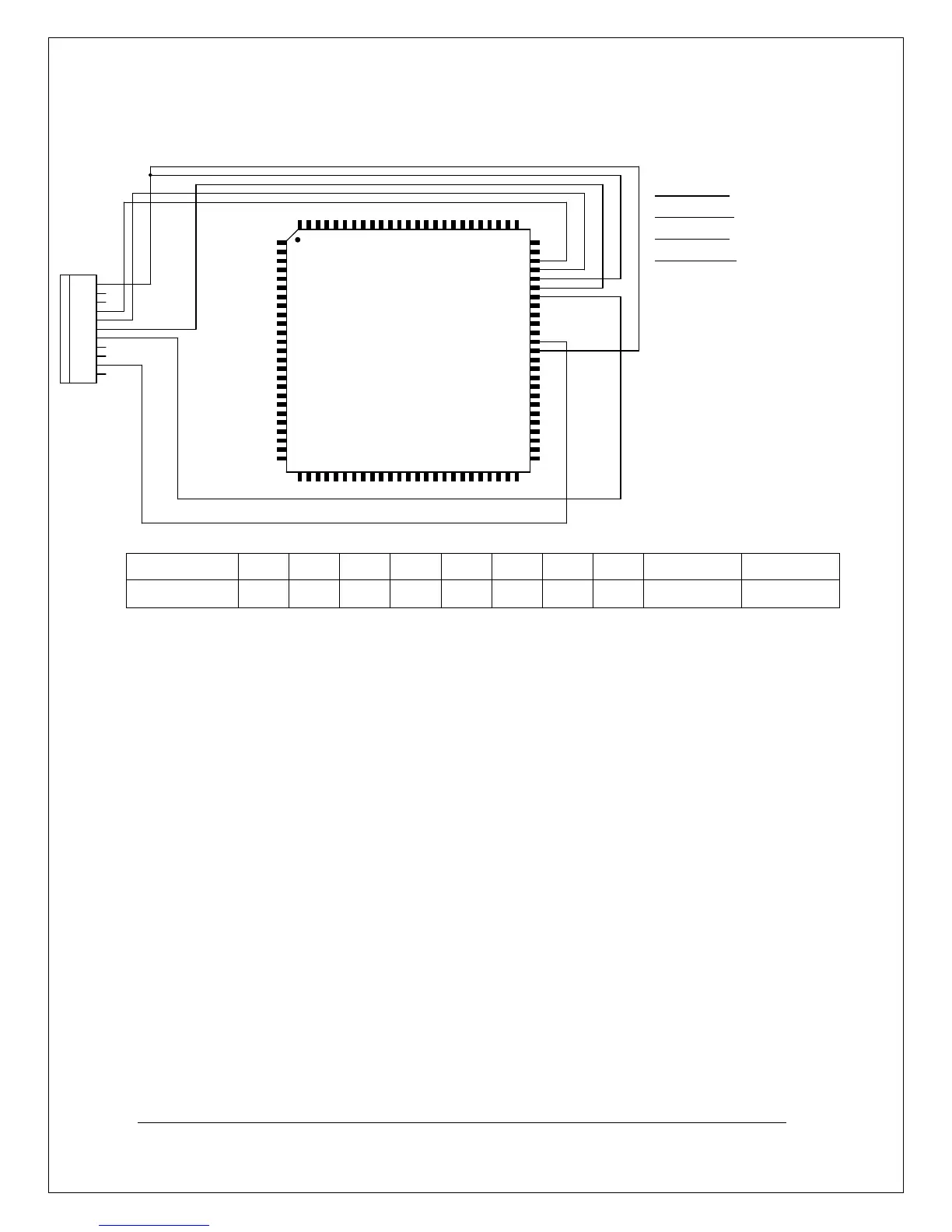
2.3.13. MC68HC11KW1
XPROG-m
GND
B0
B1
B2
B3
B4
B5
B6
Vcc
VppR
B7
TQFP 100
TxD
Vss
/RESET
MODB
MODA
Vdd
RxD
Optional-must be Lo
Optional-must be Lo
XPROG pin
B0 B1 B2 B3 B4 B5 B6 B7 Vcc VppR
Signal level - - 0/1 0/1 0 0/1 - - +5V±5%
Mask sets:
Oscillator: 68, 67 pin
Packages: TQFP 100
EEPROM: 0x0D80 – 0x0FFF
WWW.ESOBD2.COM