EasyManua.ls Logo

Trane Agility HDWA - Page 44

Trane Agility HDWA
76 pages
Print Icon
To Next Page IconTo Next Page
To Next Page IconTo Next Page
To Previous Page IconTo Previous Page
To Previous Page IconTo Previous Page
Loading...
44
HDWA-SVX001D-EN
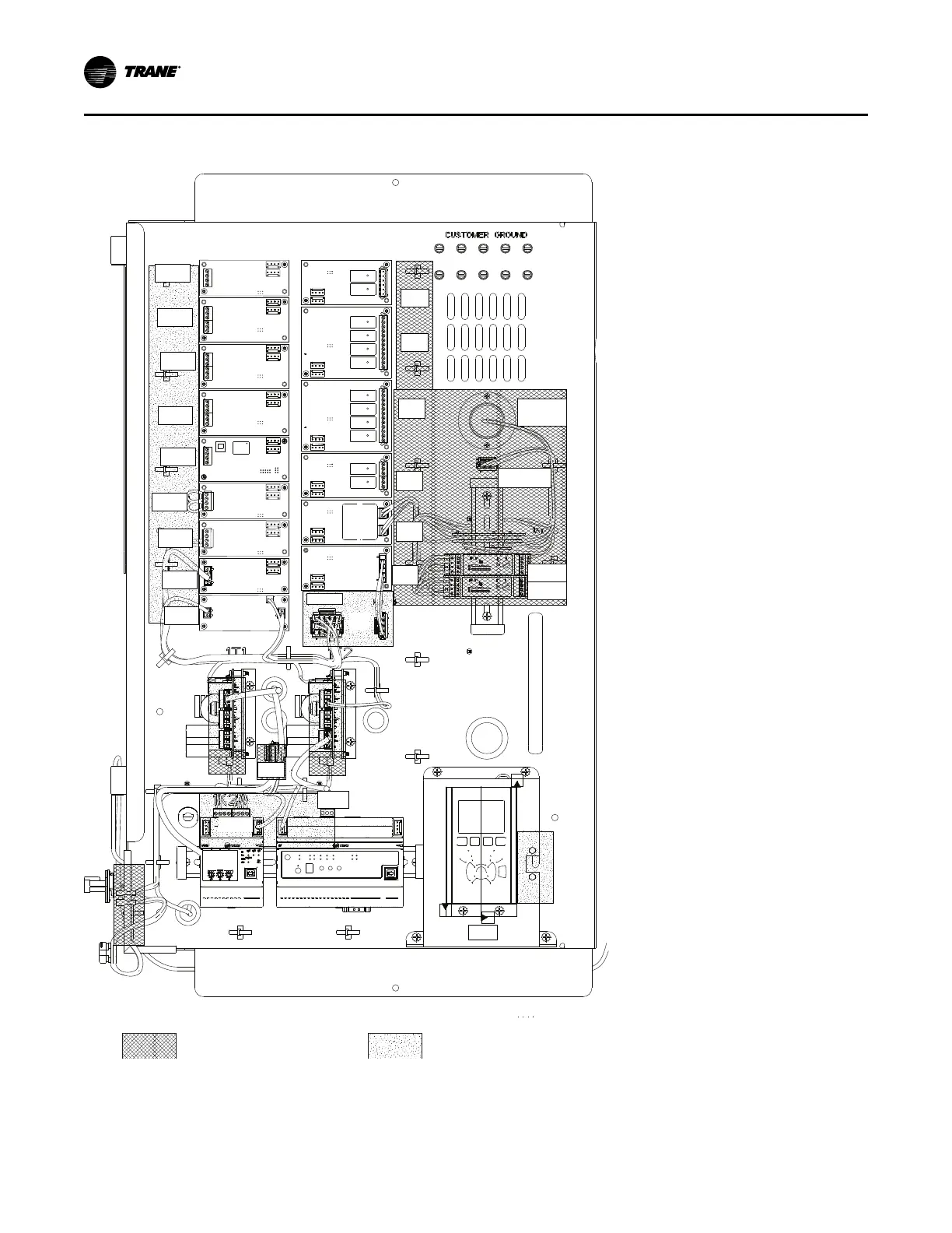
Figure 27. Control panel: Tracer AdaptiView main unit assembly (showing low voltage and higher voltage areas for
proper routing of field wiring)
B
C
A
30-115 Volt Maximum
30 Volt Maximum
1K15
1K14
1K13
1K12
1K11
1K10
1XP5/1XJ5
Service Power
1XJ1/1XP1
1K22
1K23
1K9
1K8
1K7
1K6
1K5
1K4
1K3
1K1
1K2
1XJ3/1XP3
1XJ4
XP4
1XJ2 XP
1K21
1P1
1P1
1K20
IInnssttaallllaattiioonn:: CCoonnttrroollss

Table of Contents

Related product manuals