EasyManua.ls Logo

Trane Agility HDWA - System Control Circuit Wiring Diagrams

Trane Agility HDWA
76 pages
Print Icon
To Next Page IconTo Next Page
To Next Page IconTo Next Page
To Previous Page IconTo Previous Page
To Previous Page IconTo Previous Page
Loading...
HDWA-SVX001D-EN
37
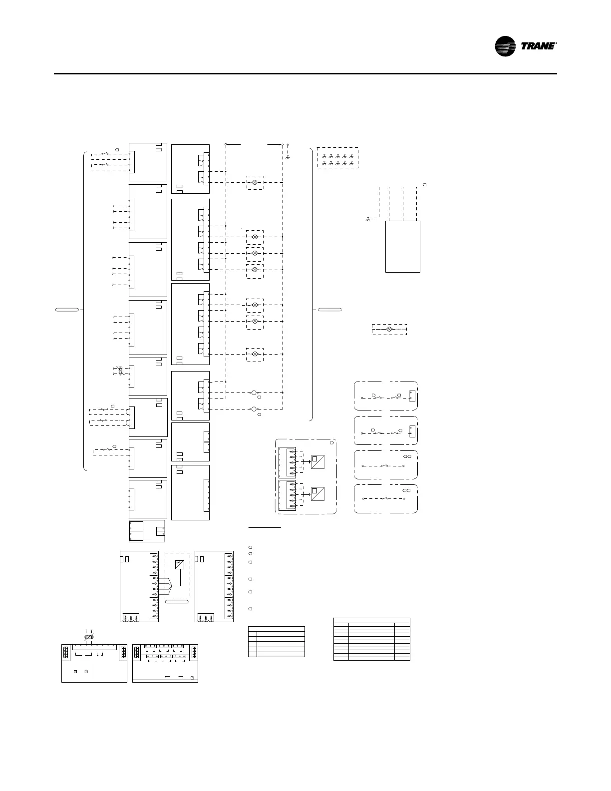
System Control Circuit Wiring
(Field Wiring)
Figure 23. HDWA Agility chiller field wiring
NO
NC
COM
NO
NC
COM
NO
NC
COM
NO
NC
COM
NO
NC
COM
NO
NC
COM
NO
NC
COM
COM
NC
NO
COM
NC
NO
COM
NC
NO
11
GND
A B
LON
GND
-
+
LINK 1
GND
-
+
LINK 2
GND
A B
LON
GND
-
+
LINK 1
GND
-
+
LINK 2
1 2
ETHERNET
B-CMIA-CMI
1
1
120VAC 60HZ
CUSTOMER PROVIDED
MAX OVERCURRENT PROTECTION 15A
NOTE: ANY 1K13 OR 1K14 DEFAULT OUTPUT MY BE REPROGRAMED
TO ANY ALTERNATE ALRAM/STATUS OUTPUT SH OWN BELOW.
DUAL HIGH VOLTAGE BINARY INPUT
CONDENSER & EVAPORATOR
WATER FLOW DETECTION
SEE DET AILS D & E FOR
EVAPORATOR & CONDENSER
WATER FLOW SWIT CH &
WATER PUMP INTERLOCK
SERVICE
TOOL
CHILLER HEAD RELIEF
REQUEST INDICATOR
(DEFAULT)
CHILLER MAXIMUM
CAPACITY INDICAT OR
(DEFAULT)
CHILLER RUNNING
INDICATOR
(DEFAULT)
CHILLER LATCHING
ALARM INDICATOR
(DEFAULT)
CHILLER NON-LAT CHING
ALARM INDICATOR
(DEFAULT)
2-10VDC or 4-20mA
EXTERNAL BASE
LOADING SET POINT
2-10VDC or 4-20mA
GENERIC R EFRIGERANT
MONITOR INPUT
2-10VDC or 4-20mA
EXTERNAL CURRENT
LIMIT SETPO INT
2-10VDC or 4-20mA
EXTERNAL CHILLED
WATER SETPOINT
2-10VDC
% RLA COMPRESSOR
OUTPUT
2-10VDC
CONDENSER
REFRIGERANT
PRESSURE
or
EVAPORATOR/CONDENSER
DIFFERENTIAL PRESSURE
OUTPUT
TRACER
COMMUNICATIONS
-OPTIONAL-
QUAD R ELAY OUTPUT
OPERATING STATUS PR OGRAMMABLE
1K14
J2
2
1
3
4
5
6
7
8
9
10
11
12
J11
J1
-OPTIONAL-
QUAD R ELAY OUTPUT
OPERATING STATUS PR OGRAMMABLE
1K13
J2
2
1
3
4
5
6
7
8
9
10
11
12
J11
J1
5H10
1 2
5H11
1 2
5H6
1 2
5H1
1 2
5H2
1 2
-OPTIONAL-
DUAL LOW VOLT AGE BINARY INPUT
1K9
J2
2
1
3
4
J1
J11
-OPTIONAL-
DUAL ANALOG I/O
1K8
GND
INPUT 2
OUTPUT 2
GND
INPUT 1
OUTPUT 1
J2
2
1
3
4
5
6
J1
J11
-OPTIONAL-
DUAL ANALOG I/O
1K6
GND
INPUT 2
OUTPUT 2
GND
INPUT 1
OUTPUT 1
J2
2
1
3
4
5
6
J1
J11
-OPTIONAL-
DUAL ANALOG I/O
1K7
GND
INPUT 2
OUTPUT 2
GND
INPUT 1
OUTPUT 1
J2
2
1
3
4
5
6
J1
J11
5S5
2 1
5S6
2 1
EXTERNAL
BASE LOADING
ENABLED/DISABLED
EXTERNAL
HOT WATER
CONTROL
ENABLED/DISABLED
-OPTIONAL-
-OPTIONAL-
-OPTIONAL-
-OPTIONAL-
-OPTIONAL-
-OPTIONAL-
-OPTIONAL-
CHILLER LIMIT
MODE INDICAT OR
(ALTERNATE)
5H15
1 2
-OPTIONAL-
N DNG
H
1X1-G
5H7
1 2
-OPTIONAL-
CHILLER LIMIT
MODE INDICAT OR
(DEFAULT)
ICE BUILDING
INDICATOR
5H8
1 2
1K15
DUAL RELAY OUTPUT
J2
2
1
3
4
5
6
J11
J1
1W2
1W3
EXTERNAL AUT O STOP
EMERGENCY STOP
REMOVE JUMPERS 1W2 AND 1W3
IF DEVICES ARE PRESENT
DUAL LOW VOLT AGE BINARY INPUT
1K4
J2
2
1
3
4
J1
J11
5S3
5S4
-OPTIONAL-
LONTALK LCI-C MODULE
1K5
J2
2
1
3
4
J1
J11
CONDENSER
WATER PUMP
CONTROL
EVAPORATOR
WATER PUMP
CONTROL
5K1
2 1
5K2
2 1
4
4
1K12
DUAL RELAY OUTPUT
J2
2
1
3
4
5
6
J11
J1
1K11
J2
2
1
J3
2
1
J11
J1
POWER SUPPLY 1
1T1
J2
1 2 3
J5
1
2
3
4
J4
1
2
3
4
J3
1
2
3
4
J11
J1
POWER SUPPLY 1
1T2
J2
1 2 3
J5
1
2
3
4
J4
1
2
3
4
J3
1
2
3
4
J11
J1
1K21
UC800 UNIT
CONTROLLER
+24 VDC
GND
+
-
+
-
+
-
M
BU
S
LINK
IM
C
-
B
IMC-A
S
E
RVICE TOOL
ETHERNET
2
1
3
4
5
6
7
8
CUSTOMER GROUND
DUAL LOW VOLT AGE BINARY INPUT
1K3
J2
2
1
3
4
J1
J11
5S7
2 1
EXTERNAL ICE
BUILDING
COMMAND
-OPTIONAL-
HI-TEMP SENSO R
TRIPLE W INDING INPUT
1K2
J2
2
1
3
4
J1
J11
1K1
TACH BOARD
J1-2(0V)
J1-1(24VDC)
J3-1(TTL+)
J2-1
J2-2
J3-2(TTL-)
-OPTIONAL-
DUAL ANALOG I/O
1K10
GND
INPUT 2
OUTPUT 2
GND
INPUT 1
OUTPUT 1
J2
2
1
3
4
5
6
J1
J11
WHT
BLU
BRN
BLK
GRY
WB11 WB12
WHT
BLU
BRN
BLK
GRY
EVAPORATOR
WATER FLOW
DETECTOR
(FIELD INSTALLED)
CONDENSER
WATER FLOW
DETECTOR
(FIELD INSTALLED)
Pd
4R17
Pd
4R18
1K23
5 7 8 4 1 2
17 18 19 20 21
1K22
5 7 8 4 1 2
17 18 19 20 21
1K11
2
1
220U 162A
J2
PRIMARY
REQUIRED
5S12
1 2
5S18
1 2
162A
OR
163A
SECONDARY
OPTIONAL
5
6
1K11
2
1
220V
J3
PRIMARY
REQUIRED
5S11
1 2
160A
OR
161A
160A
5
CUSTOMER SUPPLIED CONDENSER
PROOF O F FLOW DEVICES
CUSTOMER SUPPLIED EVAPORATOR
PROOF O F FLOW DEVICES
INSET D
INSET D
INSET E
INSET E
5S17
1 2
220G
4-22K1OT3-1X1OT
4-32K1OT2-1X1OT
TO 1X1-2
TO 1X1-3
SECONDARY EVAPORAT OR W ATER
PROOF O F FLOW DEVICES
INSET F
INSET F
5S17
1 2
158A
220E
5S18
1 2
159A
7
SECONDARY CONDENSER W ATER
PROOF O F FLOW DEVICES
INSET G
INSET G
SECONDARY
OPTIONAL
6
7 6
6
OPTIONAL BACNET
OR MODBUS
1K20
-OPTIONAL-
CLASS 2 WIRING
CLASS 1 WIRING
-OPTIONAL-
L1 L2 L3
2Q1
CUSTOMER PROVIDED
LINE VOLTAGE
(SEE UNIT NAMEPLATE)
L1
L2
L3
GND
-SEE INSET D,E,F,G-
5
FLAG NOTES
1. CAUTIO N-DO NOT ENERGIZE THE UNIT UNTIL CHECK O UT AND STARTUP PROCEDURES HAVE BEEN COMPLETED.
2. CAUTIO N-TRANE PUMP CONTROL MUST BE USED TO PROVIDE PUMP CONTROL. EVAPORAT OR CHILLED WATER PUMP MUST
BE CONT ROLLED BY THE CHILLER OUTPUT. FAILURE T O COMPLY WITH THIS R EQUIREMENT MAY RESULT IN DAMAGE OT THE UNIT.
3. RECOMMENDED FIELD W IRING CONNECTIONS AR E SHOW N BY DASHED LINES
4. UNIT PROVIDED DRY CONTACT S FOR WATER PUMP CONTROL.RELAY RATING AT 120VAC: 7.2 AMPS RESISTIVE, 2.88 AMPS PILOT DUTY,
1/3 HP, 7.2 FLA RELAY RATING AT 240VAC: 5 AMPS GENERAL PURPOSE.
5. INSTALLATION OF PRIMARY EVAPORATOR AND CONDENSER W ATER PROOF OF FLOW DEVICES ARE REQUIRED. THESE ARE INDICATE
AS 5S11 AND 5S12 CUSTOMER SUPPLIED DEVICES AND MUST BE A FLOW SENSING DEVICE SUCH AS A FLOW SW ITCH, W ATER FLOW DETECTION
CONTROLLER OR A DIFFERENTIAL PRESSU RE SW ITCH. SEE INSET D AND E FOR INSTALLATION.
6. PRIMARY EVAPORATOR AND CONDENSER WATER PROOF OF FLOW IS ALSO SHO WN USING OPT IONAL TRANE INSTALLED 1K22 AND 1K23 W ATER FLOW
DETECTION CONTROLLERS. 4R17 AND 4R18 WAT ER FLOW DETEC TION SENSORS AND WB11 AND W B12 CABLES ARE SUPPLIED BY TR ANE FOR FIELD
INSTALLATION BY THE CUSTOMER.
INSTALLATION OF CUSTOMER SUPPLIED SECO NDARY EVAPORATOR AND CONDENSER W ATER PROOF OF FLOW DEVICES AR E AT THE DISCRETION O F
THE CUSTOMER. THESE ARE INDICATED AS 5S17 AND 5S18 AND MAY BE A W ATER PUMP INTERLOCK, VALVE END SW ITCH O R ANY OTHER PRO OF OF FLOW DEVICE.
TRANE RECOMMENDS INSTALLATION OF T HE 5S17 SECONDARY EVAPORATO R W ATER PROOF OF FLOW DEVICE W HEN THE LEAVING WAT ER TEMPERATURE IS
EXPECTED T O BE 38°F OR LESS AND THAT THE METHOD USED IS INDEPENDENT OF THE PRIMARY W ATER PROOF OF FLOW DEVICE TO PROVIDE REDUNDANCY.
7. IF OPTIONAL TRANE INSTALLED 1K22 AND/OR 1K23 W ATER FLOW DETECTION CONTROLLERS AR E USED AND T HE CUSTO MER CHOOSES TO INSTALL 5S17 AND/OR
5S18 SECONDARY PROOF OF FLOW DEVICES THEN T HE CUSTOMER MUST REMOVE TRANE FACTORY WIRE BETWEEN 1X1-2 AND 1K23-4 AND/OR WIRE BETWEEN 1X1-3
AND 1K22-4. SECONDARY DEVICES WOULD THEN BE INSTALLED AS SH OWN IN INSET G AND/OR F.
TRANE RECOMMENDS W IRING THE 5K1 EVAPORATOR AND 5K2 CO NDENSER W ATER PUMP CONTROL RELAYS AS SHOWN TO ALLOW THE 1K15 MODULE T O CONT ROL
PROPER SEQ UENCING.
8. ALL UNIT POWER WIRING MUST BE 600 VOLT COPPER CONDUCTORS ONLY. REFER TO UNIT NAMEPLATE FOR MINIMUM CIRCUIT AMPACITY AND MAXIMUM
OVERCURRENT PROTECTION DEVICE. PROVIDE AN EQ UIPMENT GROUND IN ACCORDANCE W ITH APPLICABLE ELECTRIC CODES. REFER TO WIRERANGE TABLE FOR LUG SIZES.
9. ALL FIELD W IRING MUST BE IN ACCORDANCE W ITH NATIO NAL ELECTRIC CODE AND LOCAL REQUIREMENTS.
10. ALL CUSTOMER CO NTROL CIRCUIT W IRING MUST BE COPPER CONDUCT ORS ONLY AND HAVE A MINIMUM INSULATION RATING OF 300 VOLTS. EXCEPT AS NOTED, ALL CUST OMER
WIRING CONNECTIONS ARE MADE TO CIRCUIT BOARD MOUNTED BOX LUGS WITH A WIRE RANGE OF 14 T O 18 AWG OR DIN RAIL MOUNTED SPRING FORCE TERMINALS.
11. CUSTOMER SUPPLIED CONTACTS FOR ALL LOW VOLTAGE CONNEC TIONS MUST BE COMPATABLE W ITH DRY CIRCUIT 24 VOLTS DC FOR A 12 mA RESISTIVE
LOAD. SILVER OR GOLD PLATED CONTACTS RECOMMENDED.
4BT9
GRY
BLU
BLK
RED
OUTDOOR AIR
TEMPERATURE SENSOR
-OPTIONAL-
CLASS 2 WIRING
8
11
11
11
1
2
3
4
5
CONTROL PANEL
DRIVE PANEL
NOT USED
UNIT MOUNTED DEVICE
CUSTOMER PROVIDED DEVICE
DEVICE PREFIX LOCATION CODES
FUSE REPLACEMENT TABLE
DEVICE ID FUSE TYPE FUSE SIZE
2F1
2F2
2F3
2F4
2F5
2F6
2F7
2F8
2F11
2F12
CLASS CC
CLASS CC
CLASS CC
CLASS CC
CLASS CC
CLASS CC
CLASS CC
CLASS CC
BUSSMANN - 170M3467
BUSSMANN - 170M3467
15A
15A
10A
10A
5A
15A
5A
20A
315A
315A
EElleeccttrriiccaall RReeqquuiirreemmeennttss

Table of Contents

Related product manuals