EasyManua.ls Logo

Trilogy Communications Commander - Configuring Gain of Camera Inputs

Default Icon
81 pages
Print Icon
To Next Page IconTo Next Page
To Next Page IconTo Next Page
To Previous Page IconTo Previous Page
To Previous Page IconTo Previous Page
Loading...
Commander Installation Guide
Page 30 of 81
Issue 9.1
Trilogy Communications Limited
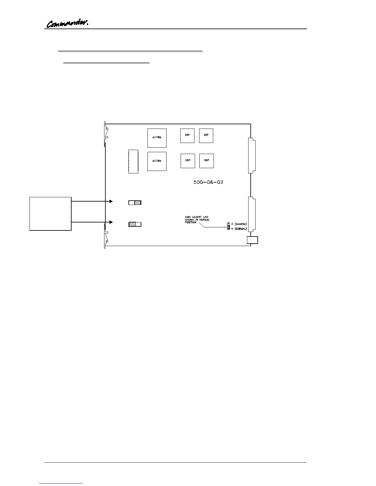
3.5 CONFIGURING THE GAIN OF CAMERA INPUTS.
3.5.1 LINK SETTING ON 500-06-02
The gain of port 6 on the 500-06-02-matrix card is set by a jumper link on the board. Jumper
J7 should be set to N for normal operation or to C to increase the gain of port 6 by +25dB. If
500-06-02 cards are used in the same matrix as the older 500-06-00 cards, they must be set
to emulate the 500-06-00 cards. Fit links J8 and J9 in position B. The diagram below shows
the position of on board links.
A
A
B
B
Jumper links J8
& J9 shown
fitted in position
B to “emulate
500-06-00”.

Table of Contents