EasyManua.ls Logo

Tuttnauer 3150 - Overall Dimensions Models 5050, 5075 el

Tuttnauer 3150
68 pages
Print Icon
To Next Page IconTo Next Page
To Next Page IconTo Next Page
To Previous Page IconTo Previous Page
To Previous Page IconTo Previous Page
Loading...
Page 14 of 66 Pages
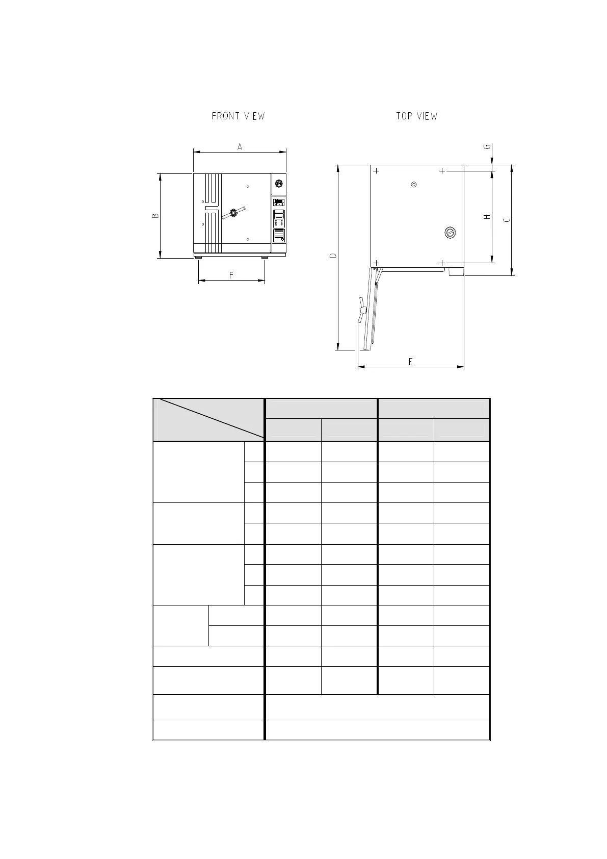
3.13 Overall Dimensions Models 5050, 5075 EL
Model
Dimensions
5050 5075
mm in mm in
Overall
Dimensions
A
880 34.6 880 34.6
B 730 28.7 730 28.7
C 815 32.1 1045 41.1
dimensions
(door open)
D
1440 56.7 1640 64.6
E 803 31.6 803 31.6
Distance between
supporting legs
F 626 24.7 626 24.7
G 54 2.1 54 2.1
H 594 23.4 824 32.4
Chamber
diameter 500 19.7 500 19.7
Depth 500 19.7 750 29.5
Reservoir volume 20 lit. 4.4 gal 20 lit. 4.4 gal
Minimum water
volume in Reservoir
10 lit. 2.2 gal 10 lit. 2.2 gal
Max. Allowable Working
Pressure (MAWP)
2.76 bar (40 psi)
Load No. counter Counting from 0 to 3000 and nullifies.

Table of Contents

Other manuals for Tuttnauer 3150

Related product manuals