EasyManua.ls Logo

Uponor SYSTEMpro 311 - Page 98

Uponor SYSTEMpro 311
107 pages
Print Icon
To Next Page IconTo Next Page
To Next Page IconTo Next Page
To Previous Page IconTo Previous Page
To Previous Page IconTo Previous Page
Loading...
96
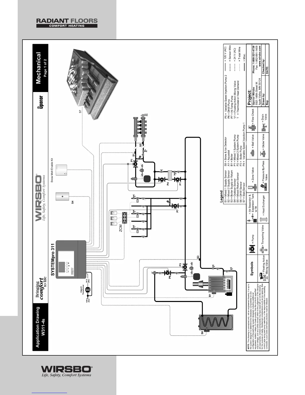
APPENDIX III
APPENDIX III - Application Drawings

Table of Contents

Related product manuals