EasyManua.ls Logo

Vertiv Liebert DSE - Page 117

Vertiv Liebert DSE
136 pages
Print Icon
To Next Page IconTo Next Page
To Next Page IconTo Next Page
To Previous Page IconTo Previous Page
To Previous Page IconTo Previous Page
Loading...
DPN003994
Page :1/2
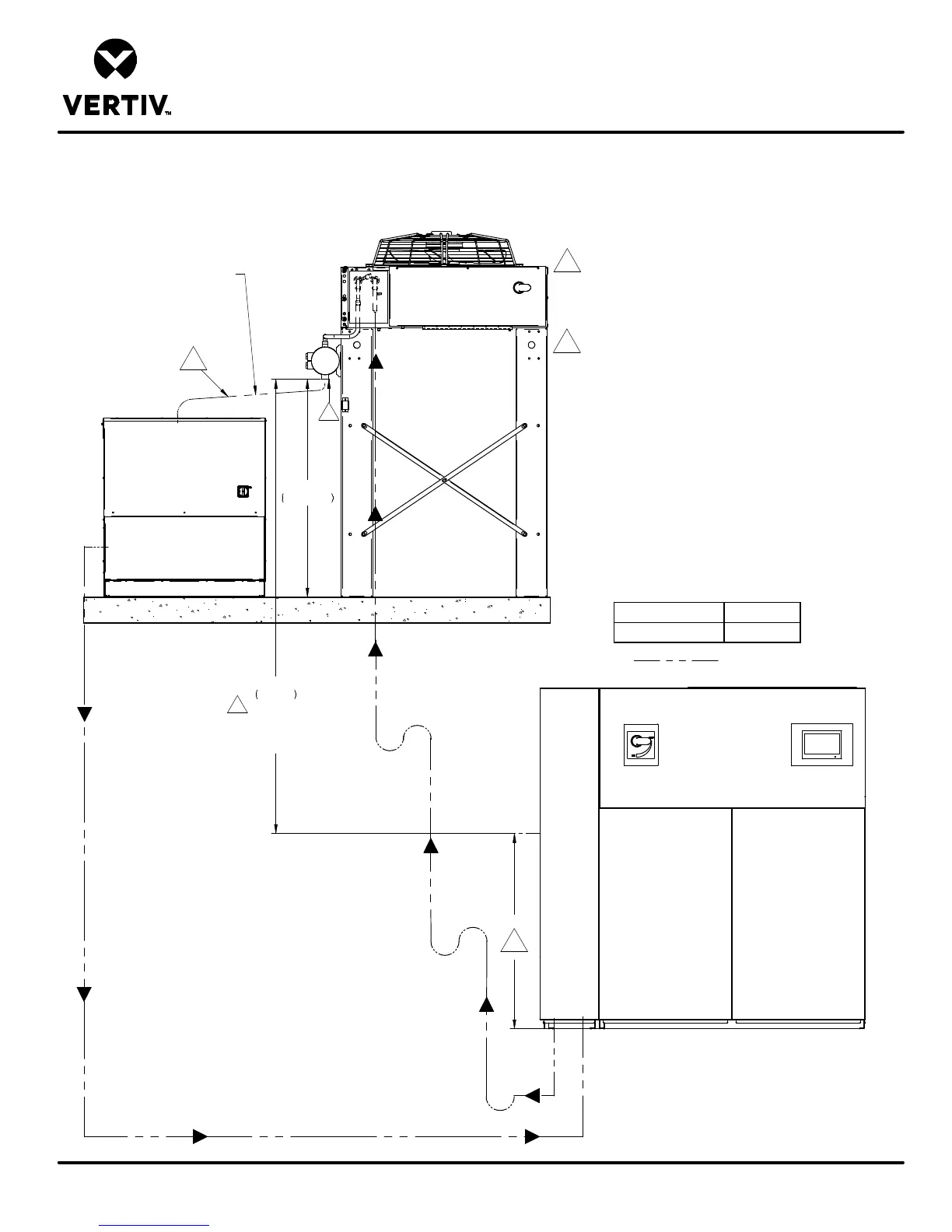
AIR COOLED PIPING SCHEMATIC
LIEBERT DSE
Form No.: DPN001040_REV4
REV : 2
REV DATE : 11/17
LIEBERT MC MOUNTED ABOVE LIEBERT DA050-165
Hot Gas
Discharge
Hot Gas
Discharge
Hot Gas
Discharge
Hot Gas
Discharge
Liquid
Return
Liquid
Return
Liquid Return
Liquid
Return
Field Piping
FRONT VIEW
Liebert EconoPhase
Unit
1
48 1/2inch
1230mm
Liebert MC Condenser
Unit
1
Maximum Vertical
Rise
H
Internal EEV Height H inch ( mm)
DA050-165
43 ( 1092)
Liebert DSE
1
60ft
18.3m
Notes:
1. The outlet of the receiver must be higher than the elevation of the EEV
inside the indoor unit. If the vertical height is greater than 60 ft (18.3m)
consult the factory
2. For proper pump function, a minimum elevation difference of
60 inch (1524 mm) must be maintained between the bottom of condenser
coil to the bottom of EconoPhase unit.
3. The maximum equivalent piping between the Liebert MC Condenser and
Econophase unit is 25 ft (7.6 m).
4. Unit must be trapped at bottom of riser with any rise over 5 feet (1.5m) high
If rise exceeds 25 feet (7.5m), then a trap is required in 20 foot (6.1m)
increments or evenly divided.
5. Pitch horizontal hot gas piping at a minimum of 1/2" per 10 feet
(42 mm per 10m) so that gravity will aid in moving oil in the direction
of the refrigeration flow.
6. Unit piping entrance varies by unit and may be through the top
of the unit.
7. All indoor and outdoor field refrigerant piping must be insulated,
½ inch minimum. All outdoor insulation must be UV and ozone
resistant.
3
1-3/8 inch minimum diameter Liquid line.
DO NOT TRAP LINE! Slope 2 inch per
10 ft (167mm per 10 meter) down
towards EconoPhase unit.
Single Circuit system shown for clarity.

Table of Contents

Other manuals for Vertiv Liebert DSE

Related product manuals