EasyManua.ls Logo

Viessmann B2HF - Preparing for installation

Viessmann B2HF
136 pages
Print Icon
To Next Page IconTo Next Page
To Next Page IconTo Next Page
To Previous Page IconTo Previous Page
To Previous Page IconTo Previous Page
Loading...
11
350
450
Ø 60.5
Ø 96
-0.5
+0.8
141
369
700
767
58
58
123 123
186
A
B C D
E
G F
1925
132
360
H
161
50
125
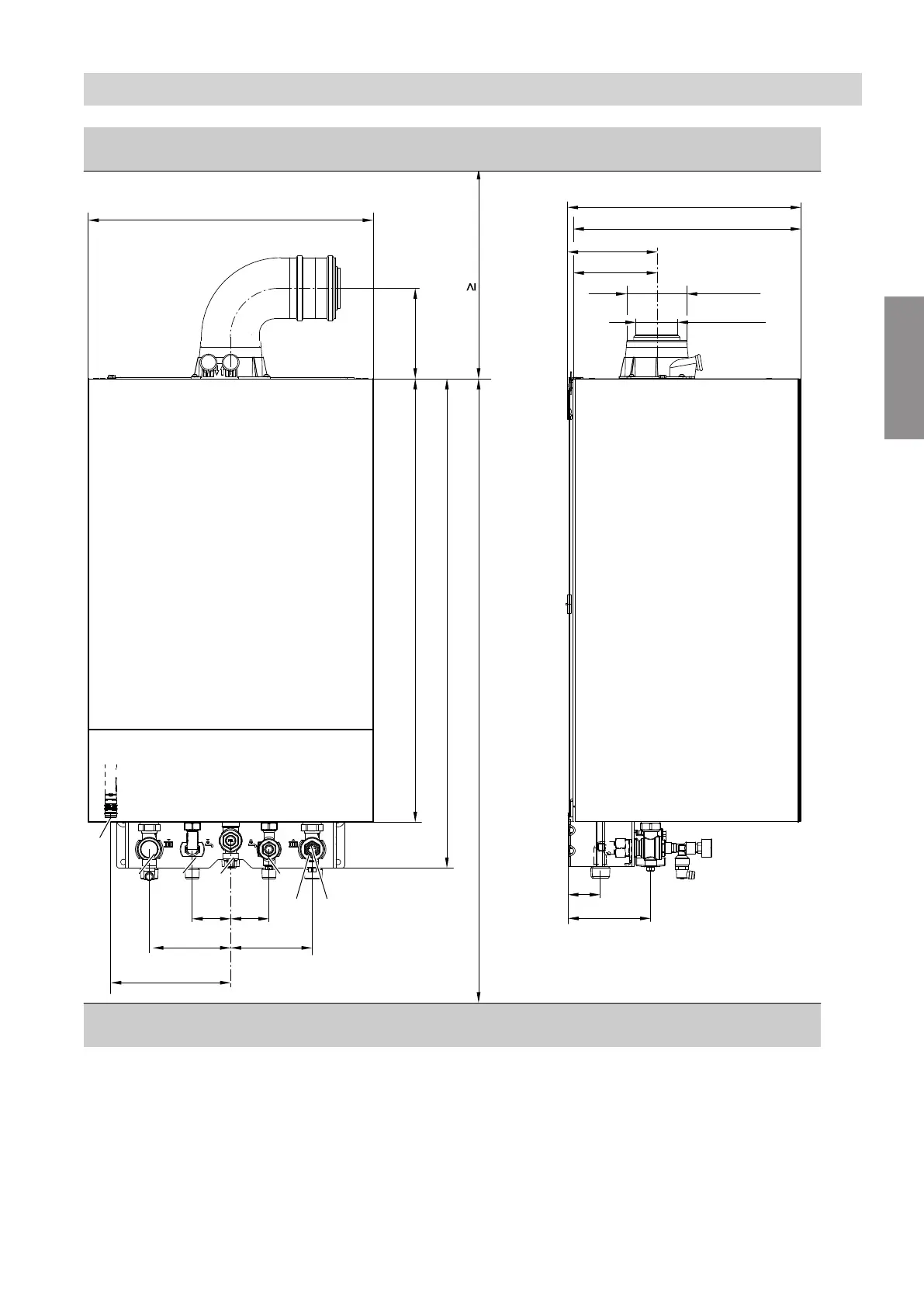
Fig. 2 Illustration shows a gas condensing combi
boiler
A
Condensate drain
B
Heating flow
C
DHW (gas condensing combi boiler)
Cylinder flow (gas condensing system boiler)
D
Gas connection
E
Cold water (gas condensing combi boiler)
Cylinder return (gas condensing combi boiler)
F
Heating return
G
Filling/draining
H
Dimension for installation with DHW cylinder below
the boiler
Preparing for installation
Preparing for installation
5593201
Installation

Table of Contents

Related product manuals