EasyManua.ls Logo

YASKAWA CIPR-GA50C series - Page 133

YASKAWA CIPR-GA50C series
310 pages
Print Icon
To Next Page IconTo Next Page
To Next Page IconTo Next Page
To Previous Page IconTo Previous Page
To Previous Page IconTo Previous Page
Loading...
5 Español
YASKAWA TOMPC71061753A YASKAWA AC Drive GA500 Installation and Operation Instruction 133
AVISO
Cuando la tensión de entrada es de 440 V o superior o la distancia de cableado es
superior a 100 m (328 ft), asegúrese de que la tensión de aislamiento del motor sea suficiente o utilice un motor-
inversor o un motor -vectorial con aislamiento reforzado. El bobinado del motor y el aislamiento pueden fallar.
Nota:
No conecte la tierra del circuito de control de CA a la cubierta del variador. Un cableado de tierra incorrecto puede
hacer que el circuito de control funcione incorrectamente.
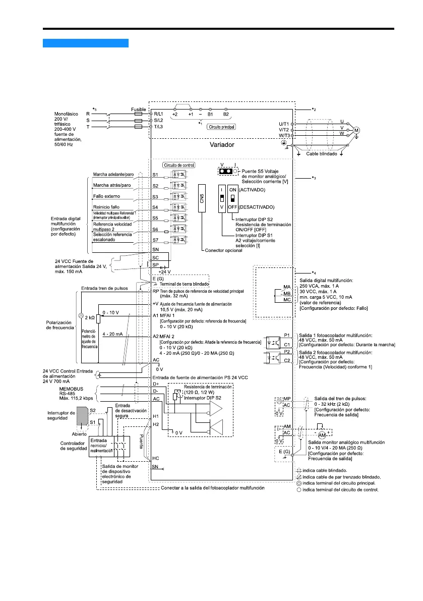
Figura 5.2 Diagrama de conexión estándar del variador
*1 Para variadores trifásicos de 200 V y 400 V, utilice los terminales -, +1, +2, B1 y B2 para
conectar las opciones al variador. Para variadores monofásicos de 200 V, utilice los
terminales -, +1, B1 y B2 para conectar las opciones al variador.

Table of Contents

Other manuals for YASKAWA CIPR-GA50C series

Related product manuals