EasyManua.ls Logo

YASKAWA P1000 Series

YASKAWA P1000 Series
94 pages
To Next Page IconTo Next Page
To Next Page IconTo Next Page
To Previous Page IconTo Previous Page
To Previous Page IconTo Previous Page
Loading...
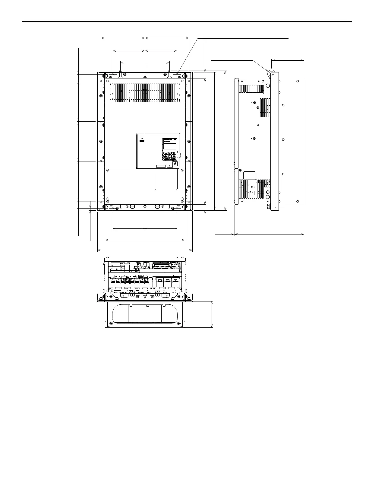
unit: mm (inch)
Eye Bolts
with M8 Screw
12-Mounting Holes for M6 Screw
283 (11.14)
3
(0.12)
199.8 (7.87)
132.6 (5.22)
324 (12.76)
386 (15.20)
130.5 (5.14)
130.5 (5.14)
179.1 (7.06) 179.1 (7.06)
165 (6.50) 161 (6.34) 165 (6.50) 27 (1.06)
24.5 (0.96)
512.7 (20.19)
24.9 (0.98)
562 (22.13)
568 (22.36)
106.9
(4.21)
130.5
(5.14)
130.5
(5.14)
27 (1.06)
8.5 (0.33)
Figure 25 Flange Type Models 4T0139U and 4T0165U Mounting Dimensions
8 Specifications
YASKAWA TOEP YAIP1U 04A YASKAWA AC Drive – P1000 6-Phase/12-Pulse Input Installation Manual
49

Related product manuals