EasyManua.ls Logo

AAON VCCX-454 - VCC-X EM1 Expansion Module; Figure 5: VCC-X EM1 Expansion Module Dimensions

AAON VCCX-454
105 pages
Print Icon
To Next Page IconTo Next Page
To Next Page IconTo Next Page
To Previous Page IconTo Previous Page
To Previous Page IconTo Previous Page
Loading...
16VCCX-454 Controller Technical Guide
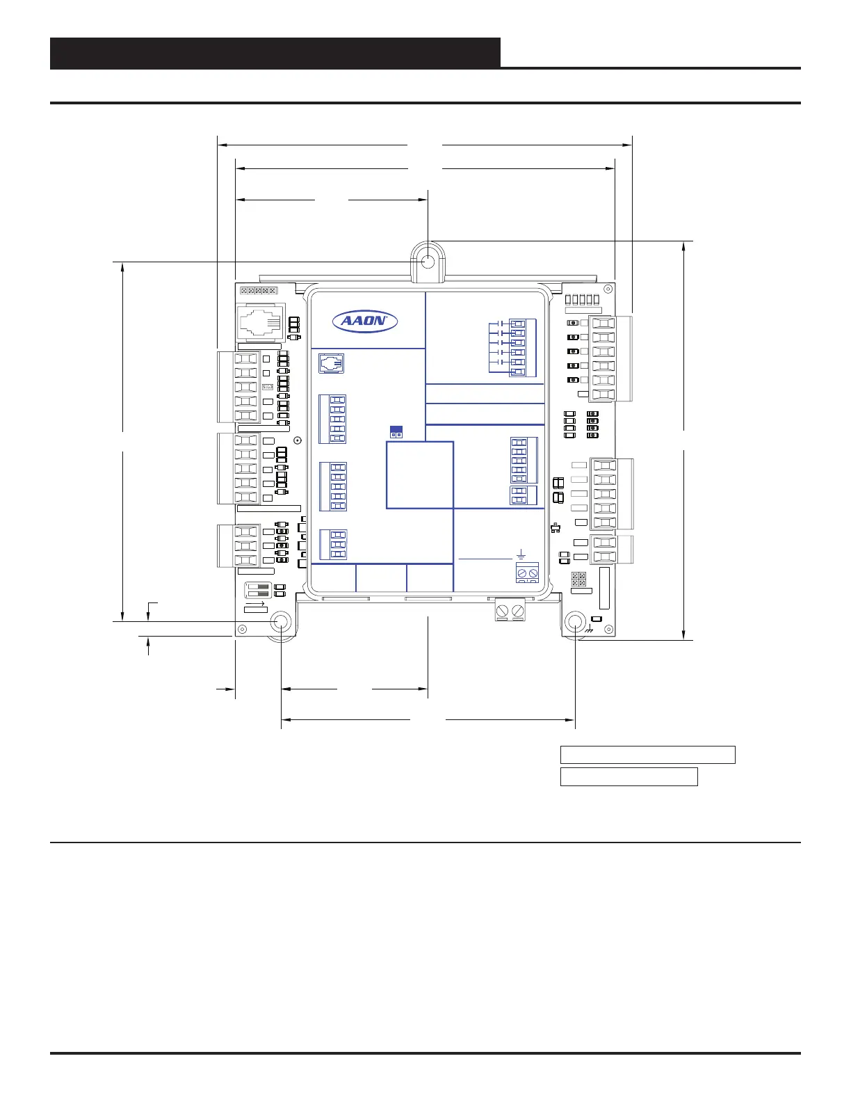
DIMENSIONS
VCC-X EM1 Expansion Module
5.
VREF
BIN3
BIN2
BIN1
2
1
ON
ADDRESS
BINARYINPUTS
PRESSURE SENSOR INPUTS
GND
GND
+5V
SIG2
SIG1
TEMP SENSOR INPUTS
GND
GND
T2
T1
STATIC PRESSURE
TB1
R58
J2
D29
D28
D27
TB2
P1
D26
D25
D24
TB7
R22
R21
R19
R18
R16
R15
R1
R1
R10
R6
R3
R1
D18
D15
D12
D8
D4
D1
C8
C6
C5
C4
C3
C2
COMM
STAT
ALARM
PWR
PWM-
GND
R5
R4
R3
R2
R1
SERIAL #
TB3
TB9
TB6
R61
R57
R56R54
R53
R49
R48
R46
R45
Q6
D21D20D19D17
C24
2
1
Rc
R35
R31
R29
R24
D13
D11
D10
D9
PWM+
R9
AOUT1
AOUT2
AOUT3
AOUT4
5621
OFF
1002
1002
1002
1002
1002
1002
47
4992
1002
1004
1002
1002
1004
1002
300
300
10uF
10uF
10uF
10uF
10uF
10uF
.01uF
10uF
300
1002
1002
3650
R4
1002
R5
1002
J1
C26
OPTIONS
R2
47
47
1001
1001
3650
3650
3650
5621
5621
5621
5621
YS102482 REV1
5.63
5.00
2.67
0.62
2.05
4.10
0.20
5.83
5.34
Note: All Dimensions are in inches.
Note: Depth is 1.50 inches.
+24 VAC
GND
RELAY CONTACT
RATING IS 1 AMP
MAX @ 24 VAC
R1
R2
R3
R4
R5
RELAY OUTPUT
TERMINALS
ANALOG OUTPUT TERMINALS
GND
NOT USED
NOT USED
RETURN DAMPER
RETURN BYPASS
CHILLED WATER
EXH. DAMPER
ENTERING WATER
GND
+5V
GND
GND
GND
E-BUS
CONNECT
E-BUS
CONNECT
24 VAC POWER ONLY
WARNING! POLARITY
MUST BE OBSERVED
OR THE CONTROLLER
WILL BE DAMAGED
POWER INPUT
TERMINAL BLOCK
PRESSURE SENSOR
INPUT TERMINALS
BINARY INPUT
TERMINALS
TEMPERATURE SENSOR
TERMINALS
www.aaon.com
VCC-X EM1 EXPANSION
AAON P/N: ASM01691
RETURN/EXHAUST POF
DIRECT FIRE STATUS SIGNAL
MID SWITCH
MIXED AIR
ECONO FEEDBACK
EXHAUST DUCT
STATIC
LABEL P/N:
G040660
RC
J3
0-10 V
0-5 V
RA PLENUM
DIRECT FIRE ALARM SIGNAL
Figure 5: VCC-X EM1 Expansion Module Dimensions

Table of Contents

Related product manuals