EasyManua.ls Logo

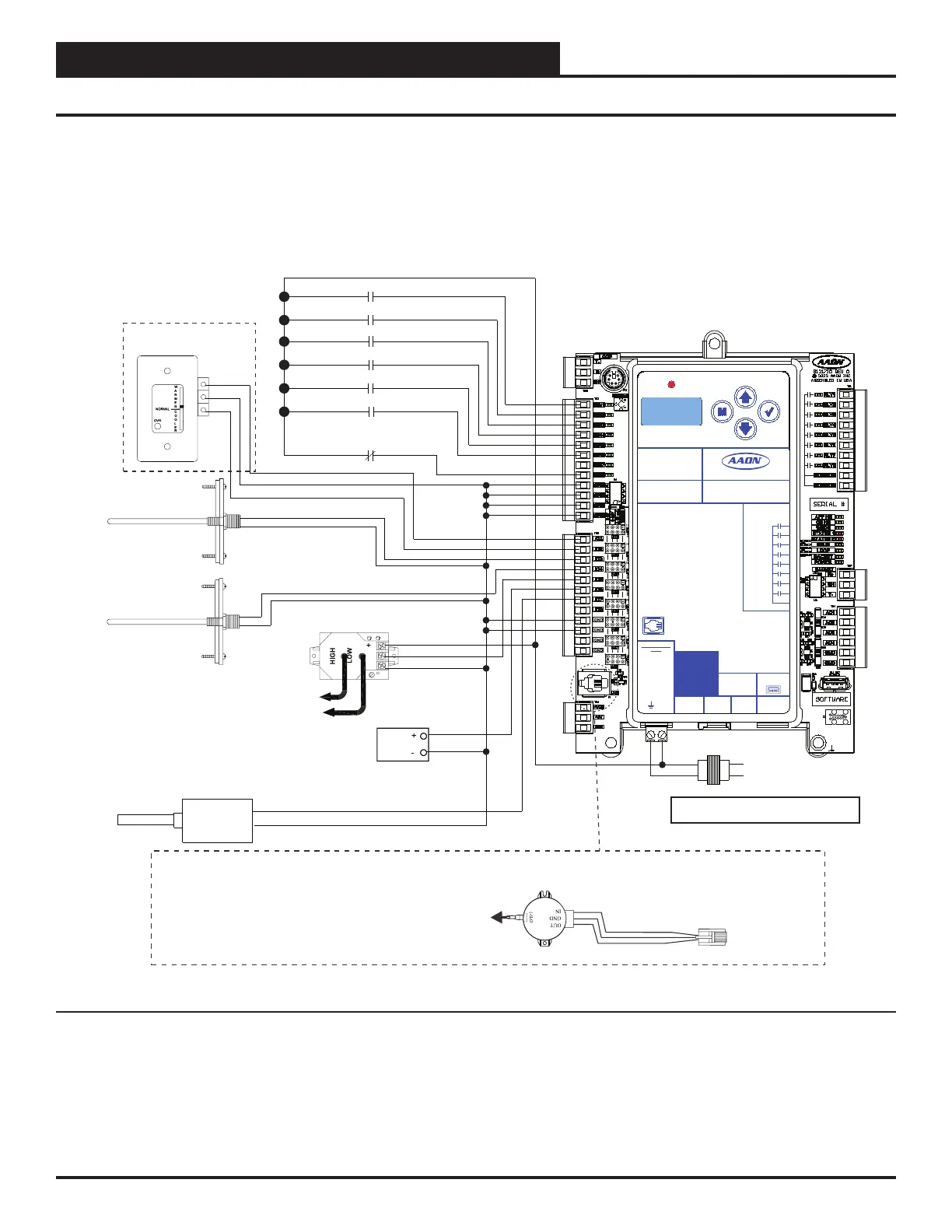
AAON VCCX-454 - Wiring; VCCX-454 Controller; Figure 7: VCCX-454 Controller Input Wiring

AAON VCCX-454
105 pages
Print Icon
To Next Page IconTo Next Page
To Next Page IconTo Next Page
To Previous Page IconTo Previous Page
To Previous Page IconTo Previous Page
Loading...
18VCCX-454 Controller Technical Guide
WIRING
VCCX-454 Controller
ALARM
UP
DOWN
ENTERMENU
LT1785
LT1785
RELAY CONTACT
RATING IS 1 AMP
MAX @ 24 VAC
RS-485 COMM
LOOP WIRE
“R” TO “R”,
“T” TO “T”,
“SHLD” TO “SHLD”
24 VAC POWER
ONLY
WARNING!
POLARITY
MUST BE
OBSERVED
OR THE
CONTROLLER
WILL BE
DAMAGED
www.aaon.com
VCCX-454
CONTROLLER
AAON P/N: ASM07503
BINARY INPUTS
BI1 = PROOF OF AIRFLOW
BI2 = DIRTY FILTER
BI3 = HOOD ON/OFF
BI4 = REMOTE OCCUPIED
BI5 = A2L AIRSTREAM LEAK DETECT
BI6 = A2L CABINET LEAK DETECT
BI7 = NOT USED
BI8 = EMERG SHUTDOWN
ANALOG INPUTS
AI1 = SPACE TEMPERATURE
AI2 = SPACE SLIDE OFFSET
AI3 = SUPPLY AIR TEMPERATURE
AI4 = RETURN AIR TEMPERATURE
AI5 = BUILDING PRESSURE
AI6 = SUPPLY AIR TEMP RESET
AI7 = OUTDOOR AIR TEMPERATURE
AI8 = NOT CONNECTED USE DUCT
STATIC CONNECTOR
LABEL P/N
G127590
DUAL
E-BUS
+24 VAC
GND
MAIN FAN
RELAY 2
RELAY 3
RELAY 4
RELAY 5
RELAY 6
RELAY 7
RELAY 8
RELAY
COMMON
BACNET +
MAIN SUPPLY FAN VFD
ECONOMIZER/WSE
MOD HEATING
FAN VFD
EXHAUST/RETURN
BACNET SHIELD
BACNET –
= SH
= R
DUCT
STATIC
10/100
ETHERNET
USB FLASH
ONLY
= T
= AO2
= AO1
= AO3
= AO4
4
5
4
Note: Either aflush mount room
sensor or a digital E-BUS room
sensor (using a modular E-BUS cable)
may be used.
Proof of Flow Switch
Dirty Filter Switch
Hood ON/OFF
Remote Forced Occupied
A2L Airstream Leak Detect
A2L Cabinet Leak Detect
Emergency Shutdown Switch
Supply Air Temp. Sensor
Mount in HVAC unit
supply air stream
Space
Temperature Sensor
GND
AUX
TEMP
Return AirTemp. Sensor
Mount in HVAC unit
return air stream
Outdoor Air
Temperature Sensor
Building Static
Pressure Sensor
Plastic tubing to
building pressure
sensing locations
Remote SupplyAir
Temperature Reset Signal
(configurable 0-10VDC) (by others)
EXC
OUT
COM
Connect FRPTubing to High Pressure Port (bottom tube)
and route to Static Pressure Pickup Probe located in unit discharge.
Leave port marked “LO” open to atmosphere.
Static Pressure
Transducer
Plug into VCCX2
Controller’s
Duct Static Port
18-30 VAC
GND
Line
Size transformer for correct total load.
VCCX-454 Controller = 15VA
Figure 7: VCCX-454 Controller Input Wiring

Table of Contents

Related product manuals