EasyManua.ls Logo

Agilent Technologies 4072A Advanced - Page 46

Agilent Technologies 4072A Advanced
84 pages
Print Icon
To Next Page IconTo Next Page
To Next Page IconTo Next Page
To Previous Page IconTo Previous Page
To Previous Page IconTo Previous Page
Loading...
46 Chapter 3
Agilent 4072/4073 Preinstallation Guide, Edition 4
Wafer Probers and Connection with Testhead
Wafer Probers
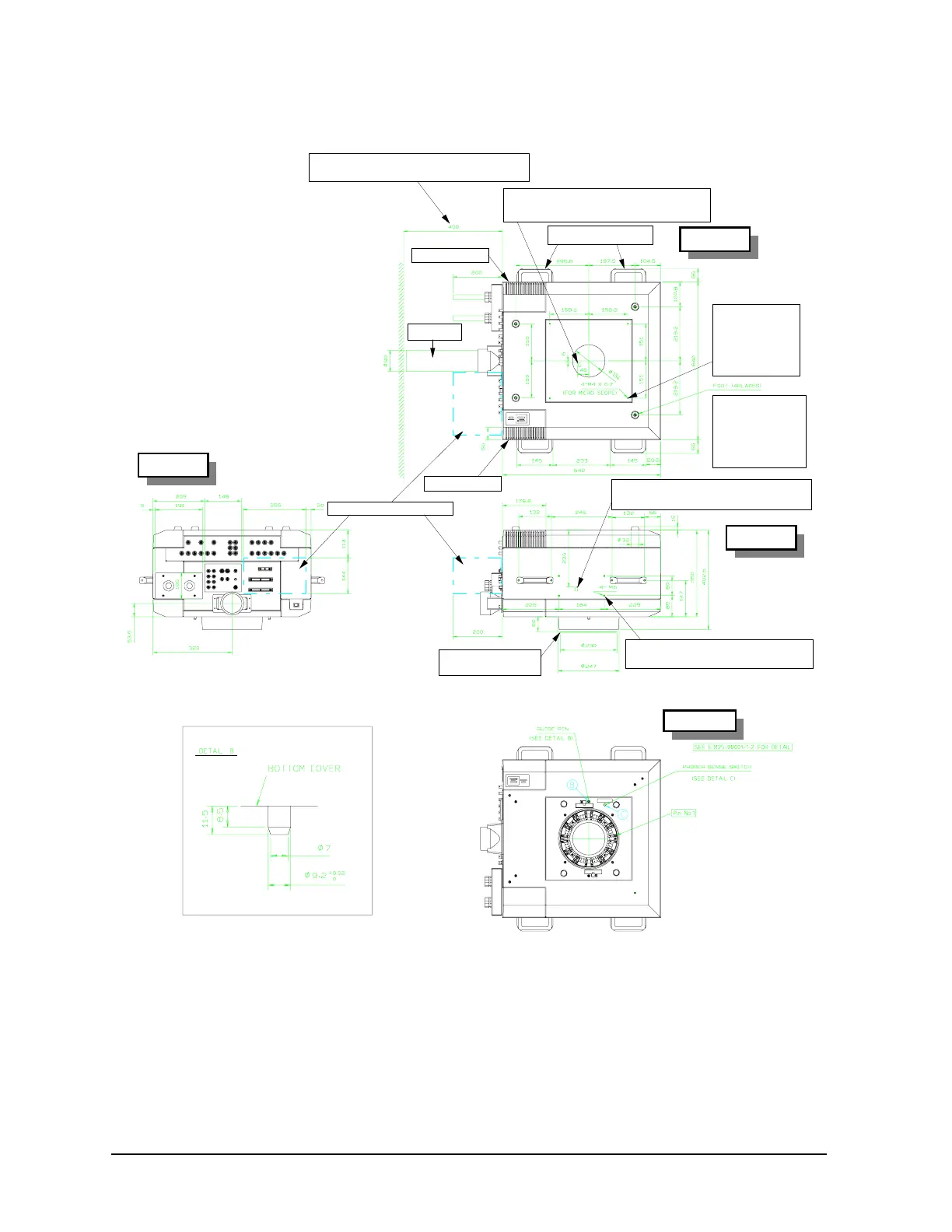
Figure 3-3 4072A/4073A Testhead dimensions (1 of 2)
Weight = approx. 75 kg (48 pin)
(include 1m air tube and 1m PS
cables; except output cables)
Units of Measure = mm
At least 400 mm is necessary so the cables
and air tube can be bent naturally.
Center of Gravity
(with 24 pin boards and 4 MPSMUs)
Handle (removable)
Air Hole Area
Air Tube
The bolts must
not be screwed
more than
12mm into the
testhead.
These feet are
removable, but do
not use the holes
for another
purpose.
Air Hole Area
Extended Adapter Area
Center of Gravity
(with 24 pin boards and 4 MPSMUs)
Personality Board
or Probe Card
The bolts must not be screwed more
than 16mm into the testhead.
TOP
FRONT
BOTTOM
LEFT

Table of Contents

Related product manuals