EasyManua.ls Logo

AIREDALE LogiCool InRak - Positioning the Unit

AIREDALE LogiCool InRak
92 pages
Print Icon
To Next Page IconTo Next Page
To Next Page IconTo Next Page
To Previous Page IconTo Previous Page
To Previous Page IconTo Previous Page
Loading...
LogiCool InRak™
IT Cooling
54
InRak™ Technical Manual 7462807 V1.11.0_04_2016
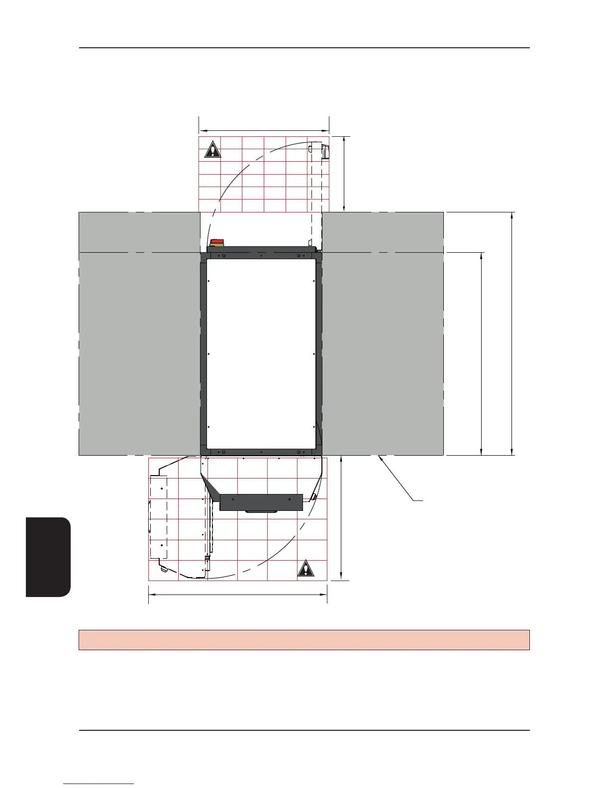
Installation
ADJACENT RACKS
MUST BE FLUSH
AT THE FRONT
1040
1200
600
550
860
610
Server
Server
InRak
Installation
Positioning
The InRak requires space at the front and rear of the unit for maintenance purposes. This is highlighted above.

Table of Contents

Related product manuals