EasyManua.ls Logo

Ametek 931S

Ametek 931S
268 pages
To Next Page IconTo Next Page
To Next Page IconTo Next Page
To Previous Page IconTo Previous Page
To Previous Page IconTo Previous Page
Loading...
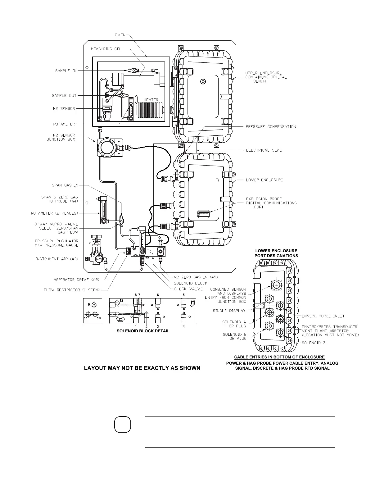
3-10 | Model 931S / Model 932S UV Analyzers
Figure 3-3 illustrates a European analyzer with a heated Cell. For
your system, refer to Final “As-Built” drawings in the analyzer
Documentation Package.
NOTE
Figure 3-3.
Backpan component
layout (European).
DO NOT OPEN IF A HAZARDOUS
GAS ATMOSPHERE IS PRESENT
SERIAL COMMUNICATIONS PORT
LAYOUT MAY NOT BE EXACTLY AS SHOWN
11
10
9
1
2
3
4
5
6
7
8
12
SOLENOID BLOCK DETAIL
POWER & HAG PROBE POWER CABLE ENTRY, ANALOG
SIGNAL, DISCRETE & HAG PROBE RTD SIGNAL
CABLE ENTRIES IN BOTTOM OF ENCLOSURE
LOWER ENCLOSURE
PORT DESIGNATIONS

Table of Contents

Related product manuals