EasyManua.ls Logo

APE 50 - Page 14

APE 50
78 pages
Print Icon
To Next Page IconTo Next Page
To Next Page IconTo Next Page
To Previous Page IconTo Previous Page
To Previous Page IconTo Previous Page
Loading...
7032 SOUTH 196th - KENT, WA 98032 - (253) 872-0141 / FAX (253) 872-8710
OPERATION / MAINTENANCE MANUAL
MODEL 50 VIBRATORY HAMMER WITH MODEL 260 POWER UNIT
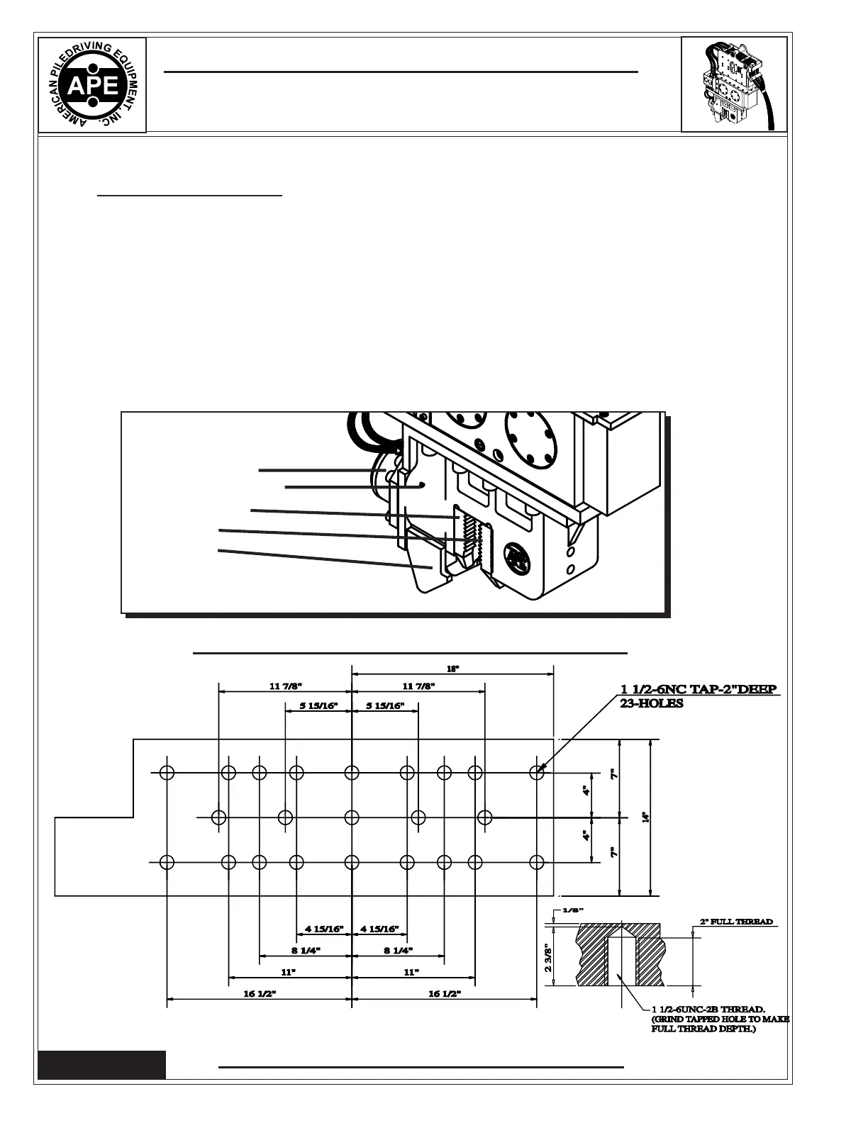
Figure 1-F. Clamp Attachment Hole Configuration.
I. GENERAL INFORMATION (Continued...)
I-3C.
The Clamp Attachment
The APE 50 comes with a standard sheet pile clamp attachment. The clamp contains two gripping
jaws. One is "fixed" and one is "moveable." A large hydraulic cylinder operates the moveable jaw with
up to 250 tons of clamping force depending on clamp pump relief pressure. The jaws open and close
by turning a switch on the remote control pendant or may be operated by turning the switch at the
main control panel mounted behind one of the doors on the power unit. The valve can be manually
operated with a screwdriver if all electrical fails. The APE standard sheet pile clamp can be fitted
with jaws to fit many different types of piles including sheet piles, H-Beams, steel plates, steel rods,
pipe piles, wood piles, and concrete piles. (Contact APE or your local APE distributor for more
information on clamp attachments for special pile types.)
Figure 1-E. General Description of Clamp Attachment.
Clamp Cylinder
Clamp Attachment
Moveable Jaw
Fixed Jaw
Pile Guide
Page 1-6

Table of Contents

Other manuals for APE 50