EasyManua.ls Logo

Astrid UPS HALLEY/E Series - Optional Features (continued); Fused Battery Switch

Astrid UPS HALLEY/E Series
56 pages
Print Icon
To Next Page IconTo Next Page
To Next Page IconTo Next Page
To Previous Page IconTo Previous Page
To Previous Page IconTo Previous Page
Loading...
OM226142 rev C
40
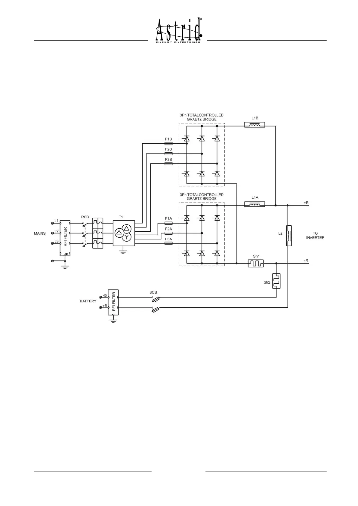
Therefore the main advantages of the use of a 12 pulses rectifier are:
Lowest harmonic content of the AC input current
Lowest ripple on the DC output voltage
Better operating conditions for the AC supply cables
Better operating conditions for a possible diesel generator
Picture 31 – Rectifier 12P with galvanic isolation
6.3 IP31 PROTECTION DEGREE
An increased protection degree is available on request instead of the standard IP20. In this
case an additional roof is added to guarantee the protection against the falling of drops of
water and additional grids, with smaller holes, are installed behind the existing openings.
6.4 SPECIAL PAINT
Different colours are available on request and with an additional cost. The special paint
can be requested according to the RAL colours standard.
6.5 FUSED SWITCH FOR THE BATTERY
The fused switch for the battery is a switch with integrated fuses and it is used to separate
the UPS from the external battery. The fused switch is necessary in installations where the
batteries are installed in a dedicated battery room, so a sectioning device is necessary
between the UPS and the battery.

Table of Contents

Related product manuals