EasyManua.ls Logo

Astrid UPS HALLEY/E Series - Optional Features (continued); Remote Control and Monitoring Options

Astrid UPS HALLEY/E Series
56 pages
Print Icon
To Next Page IconTo Next Page
To Next Page IconTo Next Page
To Previous Page IconTo Previous Page
To Previous Page IconTo Previous Page
Loading...
OM226142 rev C
41
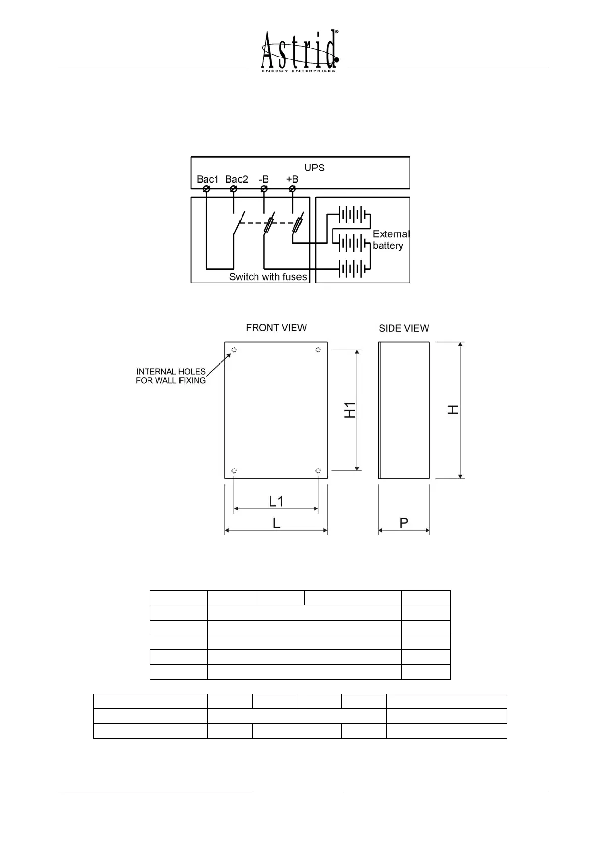
It is mounted in a separate cabinet and it is equipped with free voltage contacts for the
indication of the switch position (open-closed) and fuses condition.
6.5.1 Connections
The battery switch with fuses is connected between the UPS and the external battery
cabinet as illustrated below.
Picture 32 – Connection of the battery fused switch
6.5.2 Technical data
- Colour: RAL 7032
- Protection degree: IP20
UPS (kVA) 20 30 40 60 80
L – mm 400 500
P – mm 200 200
H – mm 400 700
L1 – mm 360 460
H1 – mm 360 660
UPS (kVA) 20 30 40 60 80
Switch type 2 pole fused switch 3 poles switch + fuses
Fuses size (A) 80 Gg 80 Gg 125 Gg 160 Gg 400 Gg

Table of Contents

Related product manuals