EasyManua.ls Logo

Barco SP2K-C - Dimensions of the Projector

Barco SP2K-C
156 pages
Print Icon
To Next Page IconTo Next Page
To Next Page IconTo Next Page
To Previous Page IconTo Previous Page
To Previous Page IconTo Previous Page
Loading...
R5914712 /00 SP2K-C136
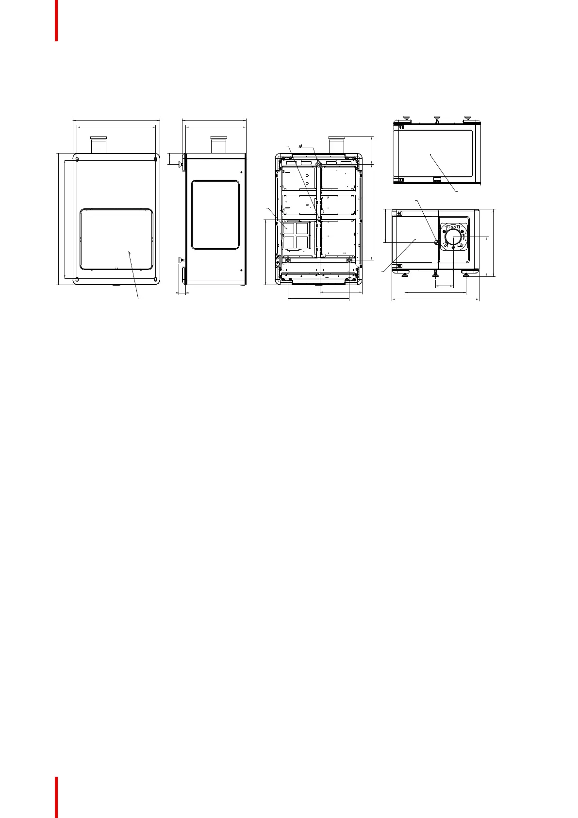
A.1 Dimensions of the projector
Dimensions of the projector
AIR OUTLET
55
1070
960
90
710
640
519
492
AIR INLET
CENTER OF GRAVITY
270
499
547
322,
66
710
145
CENTER OF GRAVITY
49 (3x)
530
AIR INLET
345
499
779,5 MAX. 225,5
AIR INLET
Image A–1 All dimension given in mm
Dimensions

Table of Contents

Related product manuals