EasyManua.ls Logo

BendPak 5175153 - Page 32

Default Icon
60 pages
Print Icon
To Next Page IconTo Next Page
To Next Page IconTo Next Page
To Previous Page IconTo Previous Page
To Previous Page IconTo Previous Page
Loading...
32
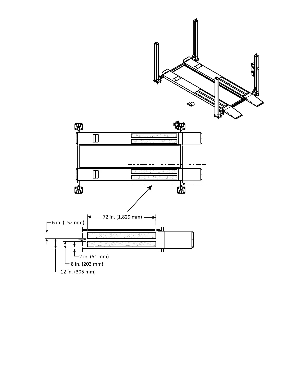
Fig. 19.1

Related product manuals