EasyManua.ls Logo

Binder COMBIMASS compact - Determining the B dimension (feed unit, welded sleeve with internal thread)

Binder COMBIMASS compact
53 pages
Print Icon
To Next Page IconTo Next Page
To Next Page IconTo Next Page
To Previous Page IconTo Previous Page
To Previous Page IconTo Previous Page
Loading...
COMBIMASS
®
compact
Doc. No.: 0905ME20500
15
Chapter 2 Installation
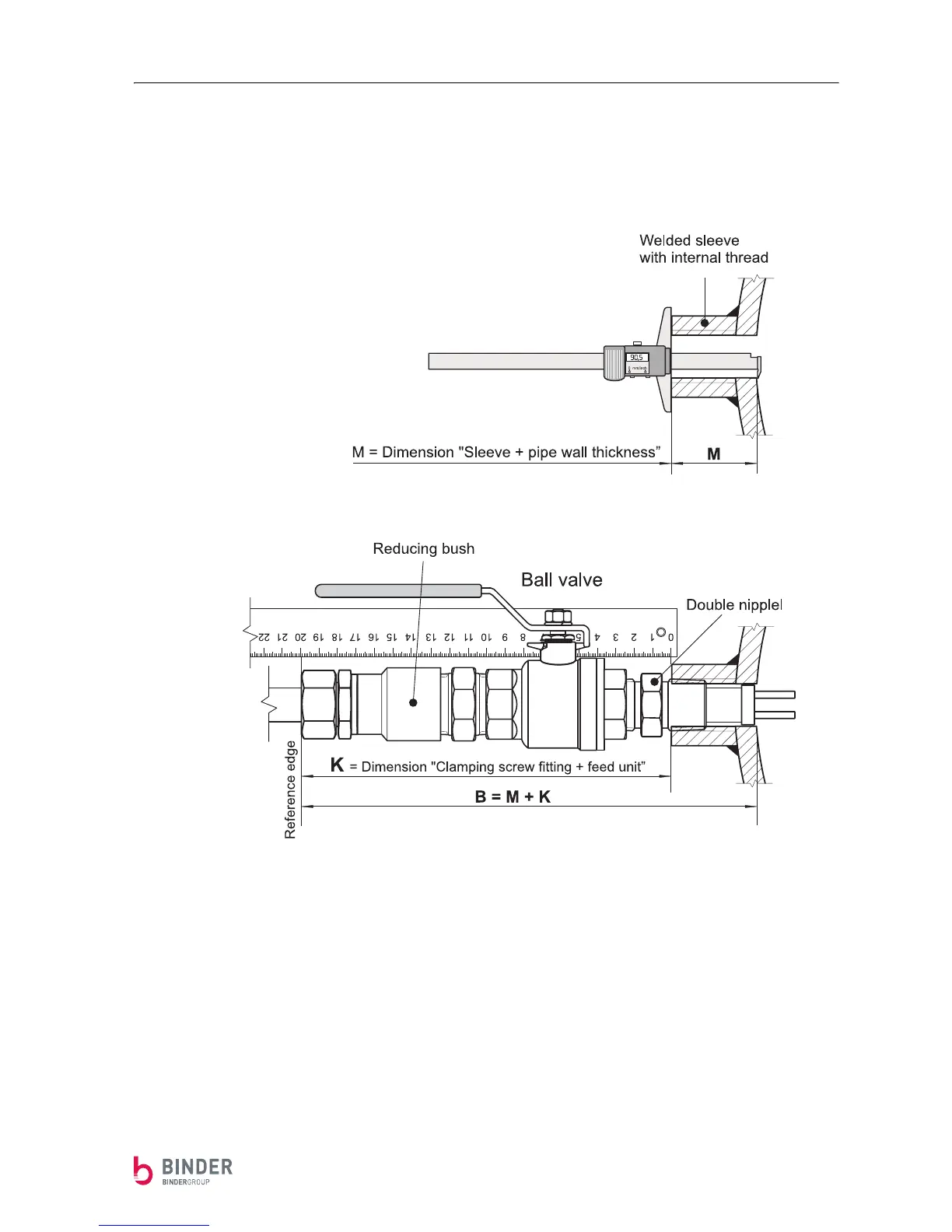
Determining the B dimension (feed unit, welded sleeve with internal
thread)
Before installing the feed unit, you should measure the length of the welded sleeve up to the inner wall
of the pipe (dimension "M" as on the left of the following diagram) in order to determine dimension "B".
Install the feed unit. Please use sealing material according to the specifications. Screw the threaded pipe
nipple of the clamping screw fitting into the reducing bush. Screw the nut with the pressing ring and the
cutting ring onto the threaded pipe nipple in such a way that the sensor rod can still move.
Measure dimension "K" = reference edge up to the welded sleeve (see on left of above diagram).
Add dimensions "K" and "M" to obtain dimension "B".

Table of Contents