EasyManua.ls Logo

Bosch FCS-320-TP2 - Air Filters for Dusty Areas; Water Separator for Humid Areas

Bosch FCS-320-TP2
134 pages
Print Icon
To Next Page IconTo Next Page
To Next Page IconTo Next Page
To Previous Page IconTo Previous Page
To Previous Page IconTo Previous Page
Loading...
24 en | Technical Specifications Aspirating Smoke Detector
2018.04 | 2.0 | F.01U.130.926 Operation Guide Bosch Sicherheitssysteme GmbH
3.6.5 Air filters for dusty areas
In areas with interference to the environment such as, e.g. dust, an air filter is to be used to
protect the smoke detection system. The standard air filter used is the type FAS-ASD-FL,
consisting of a plastic housing with two pipe connections. If the air filters are dirty, then the
filter inserts must be changed by opening the filter housing.
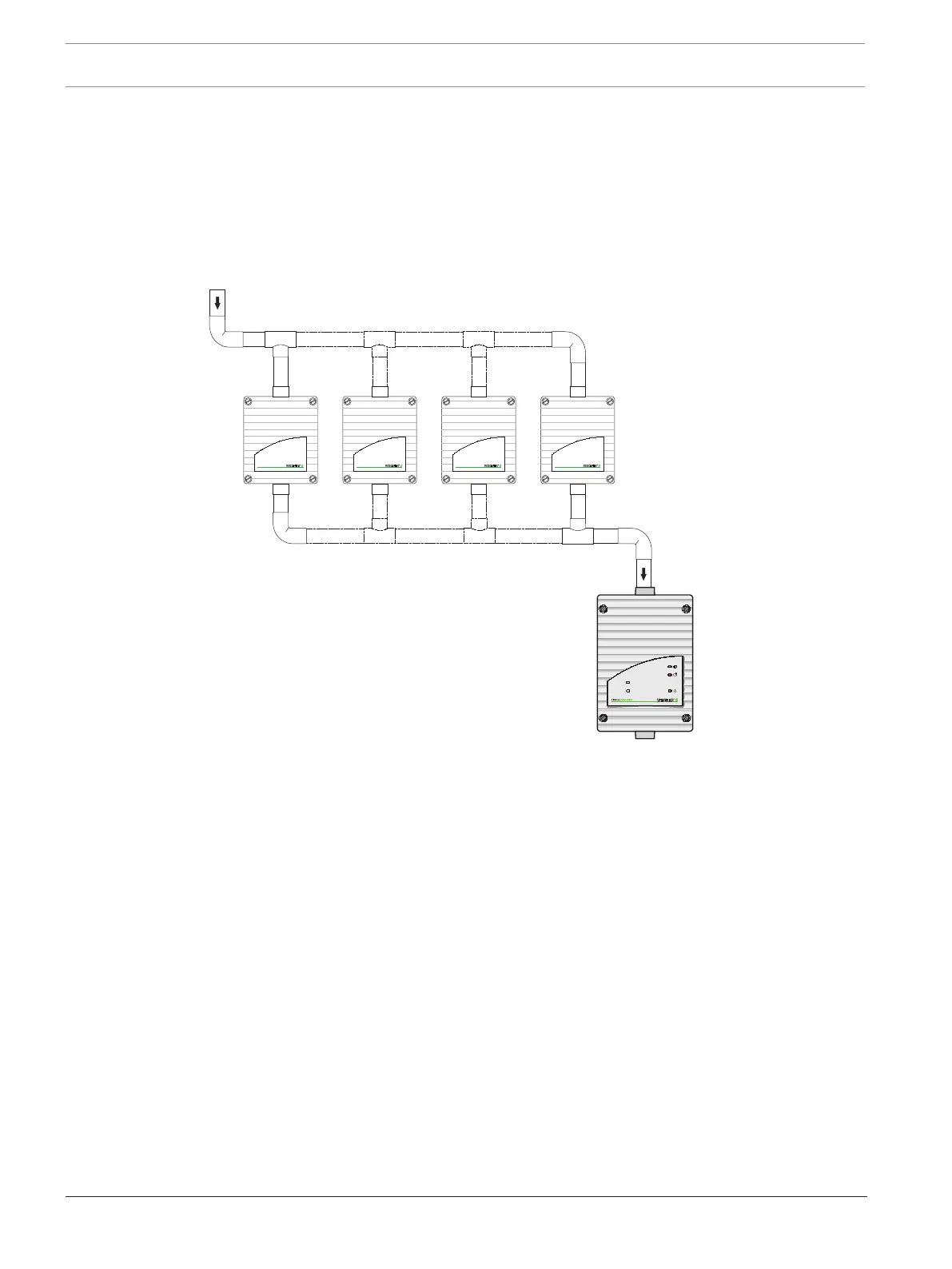
In order to extend the maintenance intervals, one air filter can be installed in every output
pipe instead of one air filter inside the main sampling pipe. The same design specifications
shall apply as stated in the projection tables in the appendix.
FAS-ASD-FLFAS-ASD-FLFAS-ASD-FLFAS-ASD-FL
FAS/FCS
Furthermore, in order to extend the maintenance intervals, several air filters can be installed
in parallel in the main sampling pipe. This requires the main sampling pipe to be split into one
or several pipes and to be equipped with the same air filter or the combination of air filters.
The individual pipes can then alternatively be either combined again to one main sampling
pipe or be separately continued into the monitoring area(s). The same design specifications
for the individual air filters shall apply as stated in the projection tables in the appendix.
3.6.6 Water Separator for Humid Areas
If the smoke aspiration system is operated in environments where condensate can form in the
aspiration system, a water separator is used. Condensate can form with sharp temperature
fluctuations and in areas where fresh air is monitored.For areas with extremely high humidity,
the FAS-ASD-WS Water Separator can be used, for example.
The FAS-ASD-WS Water Separator is integrated at the lowest point in the pipe system
downstream of the air filter and the aspirating smoke detector. The 45° pipe elbow permits
optimum distance from the wall.

Table of Contents

Related product manuals