EasyManua.ls Logo

Canrig PC3000-26 - Drawing ID: AY50320 (2 of 2) Rev No: B

Default Icon
428 pages
Print Icon
To Next Page IconTo Next Page
To Next Page IconTo Next Page
To Previous Page IconTo Previous Page
To Previous Page IconTo Previous Page
Loading...
2
3
6
A
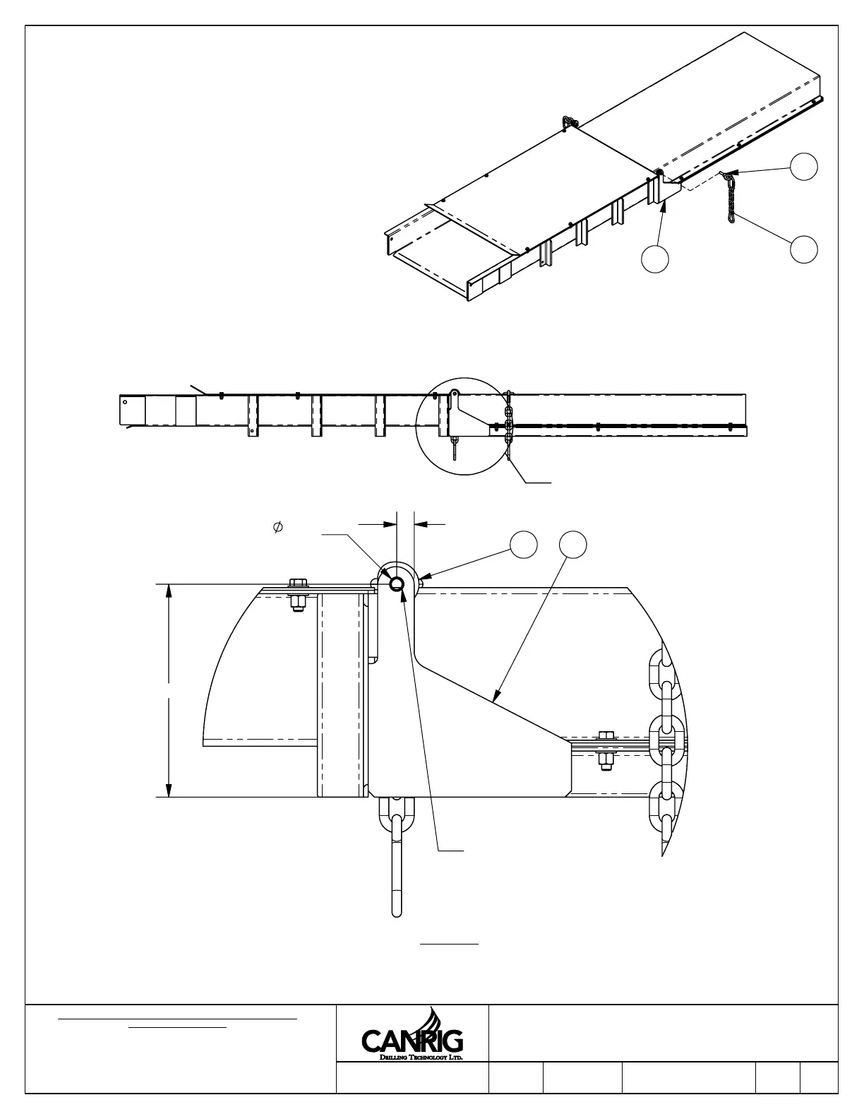
9/16"
2 PL
11/16"
8 3/8"
DETAIL A
DRILL 9/16" HOLE THROUGH
EXTENSION PAN TO ALIGN
WITH HOLES IN GORETRAC PAN.
1 2
REV:
DATE:
AY50320
10/18/2007
GORETRAC PAN ASSEMBLY
2 OF 2
B
DRAWING NO:
© 2009 CANRIG DRILLING TECHNOLOGY CANADA LIMITED
ALL RIGHTS RESERVED
7475 51 Street SE
Calgary, Alberta, Canada, T2C 4L6
Website: www.canrig.com
Bus. (403) 237-6400 Fax. (403) 233-2667
SHEET:
TITLE:
THE DRAWINGS, INFORMATION AND SUBJECT MATTER HEREOF
ARE THE CONFIDENTIAL, SOLE AND EXCLUSIVE PROPERTY OF
CANRIG DRILLING TECHNOLOGY CANADA LTD, AND ARE NOT
TO BE COPIED, REPRODUCED, OR USED IN ANY MANNER FOR
ANY PURPOSE WHATSOEVER WITHOUT WRITTEN CONSENT
OR DIRECTION.
DRAWN BY:
-

Table of Contents

Related product manuals