EasyManua.ls Logo

Canrig PC3000-26 - Page 33

Default Icon
428 pages
Print Icon
To Next Page IconTo Next Page
To Next Page IconTo Next Page
To Previous Page IconTo Previous Page
To Previous Page IconTo Previous Page
Loading...
General Information
Canrig Drilling Technology Ltd. 3-15
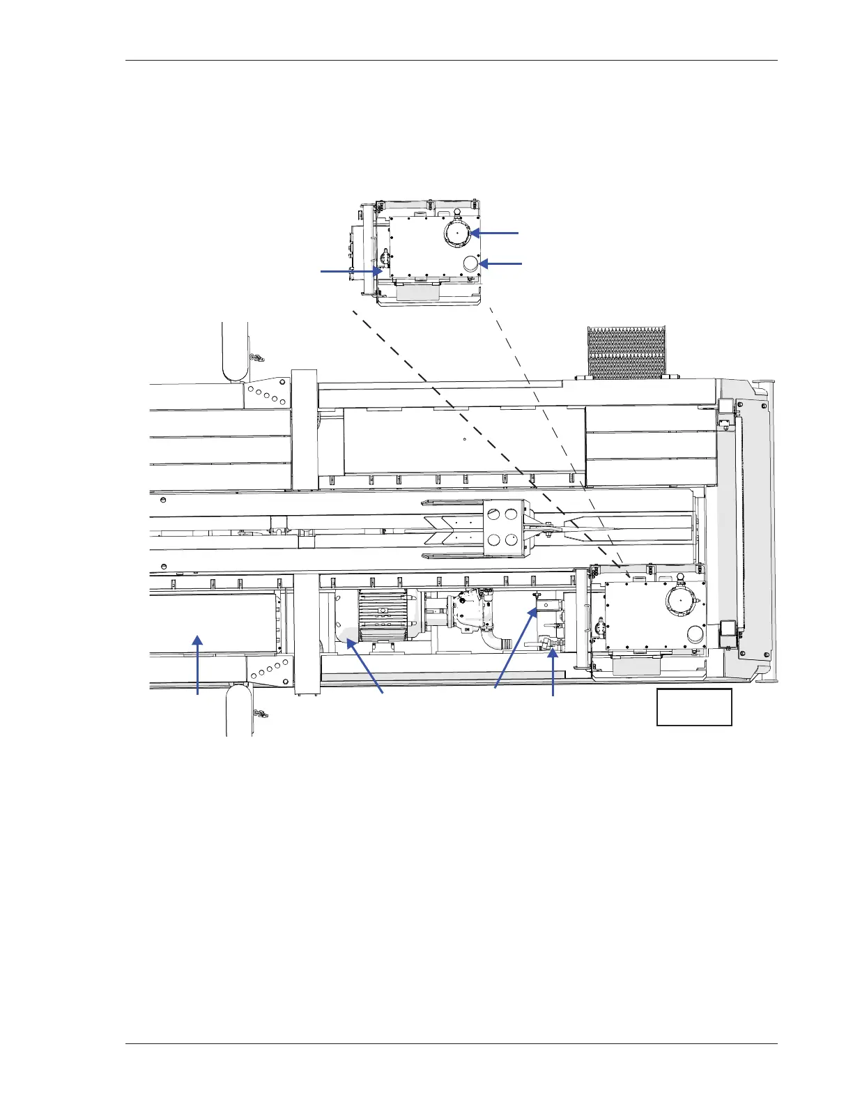
The electric motor, hydraulic pump, oil heater, and temperature transmitter are located under removable
floor panels.
Figure 3-14: Hydraulic Power Unit (HPU), Top View
Hydraulic Tank
Tank Breather Filter
Pump Case Drain
Spin-on Filter
In-tank Return Filter
HPU

Table of Contents

Related product manuals