EasyManua.ls Logo

ClimateMaster TMW036 - Page 26

ClimateMaster TMW036
48 pages
Print Icon
To Next Page IconTo Next Page
To Next Page IconTo Next Page
To Previous Page IconTo Previous Page
To Previous Page IconTo Previous Page
Loading...
CLIMATEMASTER WATER-SOURCE HEAT PUMPS
Tranquility
®
Water-to-Water (TMW) Series
Rev.: 04/15/16
26
ClimateMaster Water-Source Heat Pumps
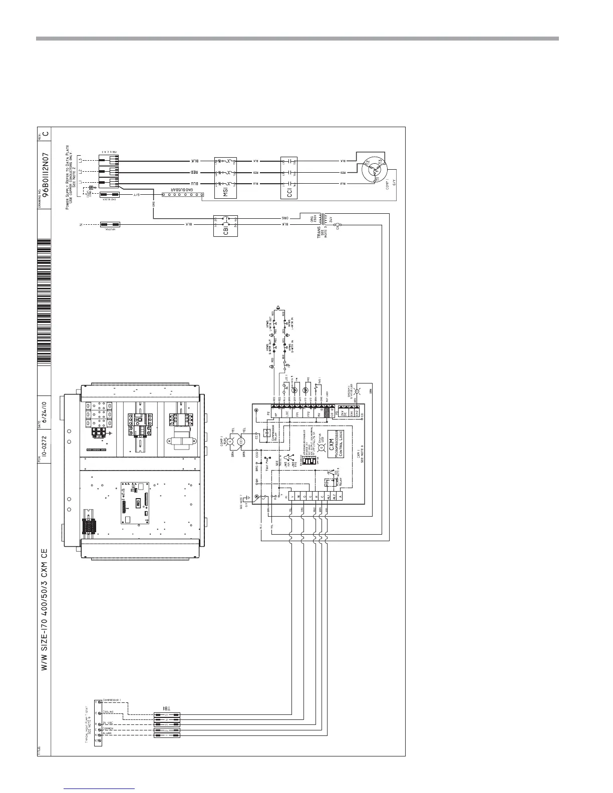
Typical Wiring Diagram Three Phase - TMW 170 Units with CXM CE