EasyManua.ls Logo

Cornelius CCM0330 - Page 11

Cornelius CCM0330
129 pages
Print Icon
To Next Page IconTo Next Page
To Next Page IconTo Next Page
To Previous Page IconTo Previous Page
To Previous Page IconTo Previous Page
Loading...
General Information
Page A9
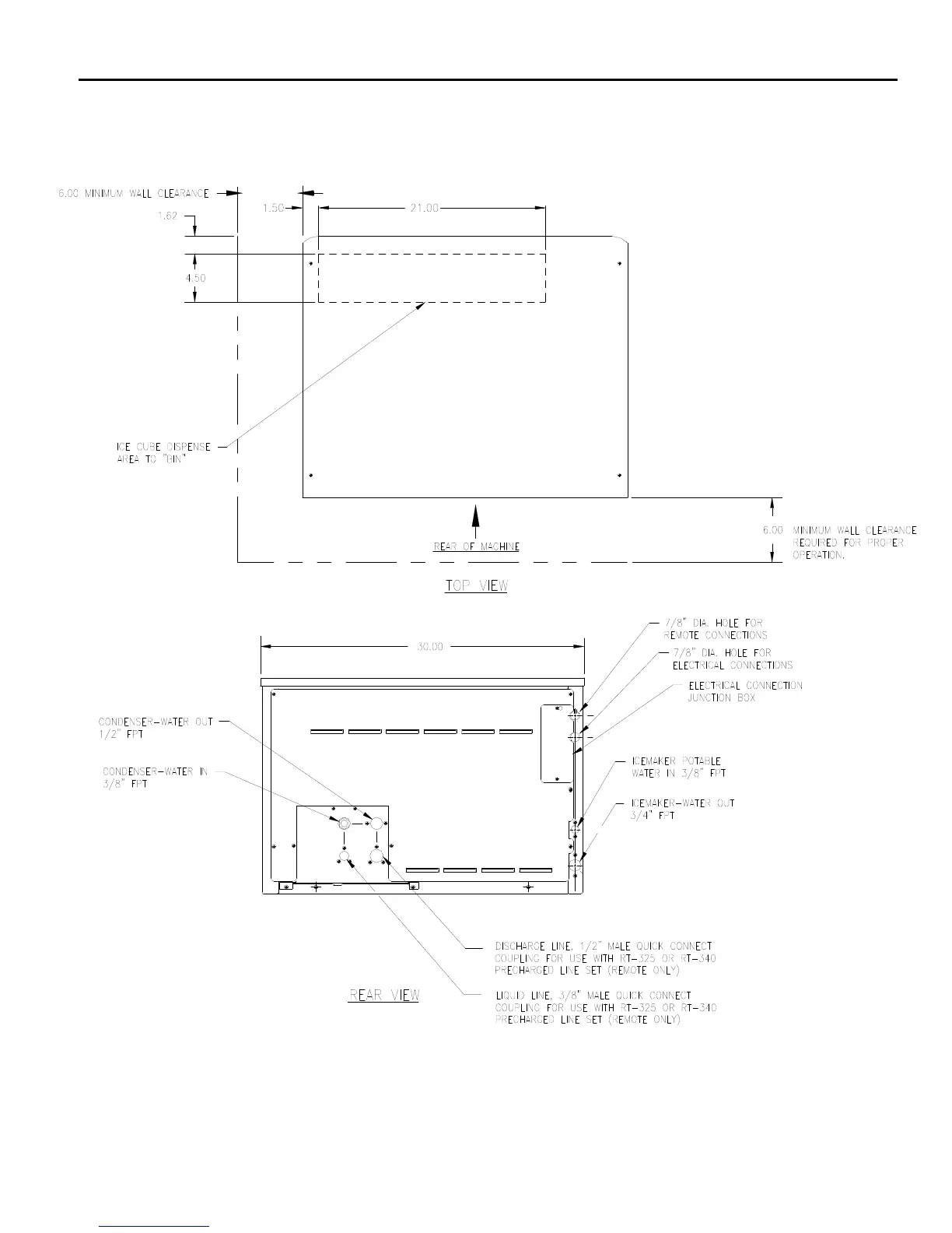
Electrical and Plumbing Requirements: CCM0330, CCM0430, CCM0530, CCM0630, CCM0830
and CCM1030 (30 Inch Wide Cubers)

Table of Contents

Related product manuals