EasyManua.ls Logo

Crane 787E - Machine Controls and Indicators; Service Keypad

Crane 787E
53 pages
Print Icon
To Next Page IconTo Next Page
To Next Page IconTo Next Page
To Previous Page IconTo Previous Page
To Previous Page IconTo Previous Page
Loading...
Snack / Refreshment Center Setup and Operator's Guide
Page 6April, 1999 1670001
INTERLOCK
SWITCH
LOW VOLTAGE
SWITCH
SERVICE
KEYPAD
CABINET
SELECTION
SWITCH
BILL
ACCEPTOR
(OPTIONAL)
COIN
INSERT
COIN
RETURN
BUTTON
MONETARY
PANEL
NUMERALS
1-9, *,0, #
LETTERS
A-H,J
INSTRUCTION
PLATE
FREE VEND
KEYSWITCH
(OPTIONAL)
MESSAGE
DISPLAY
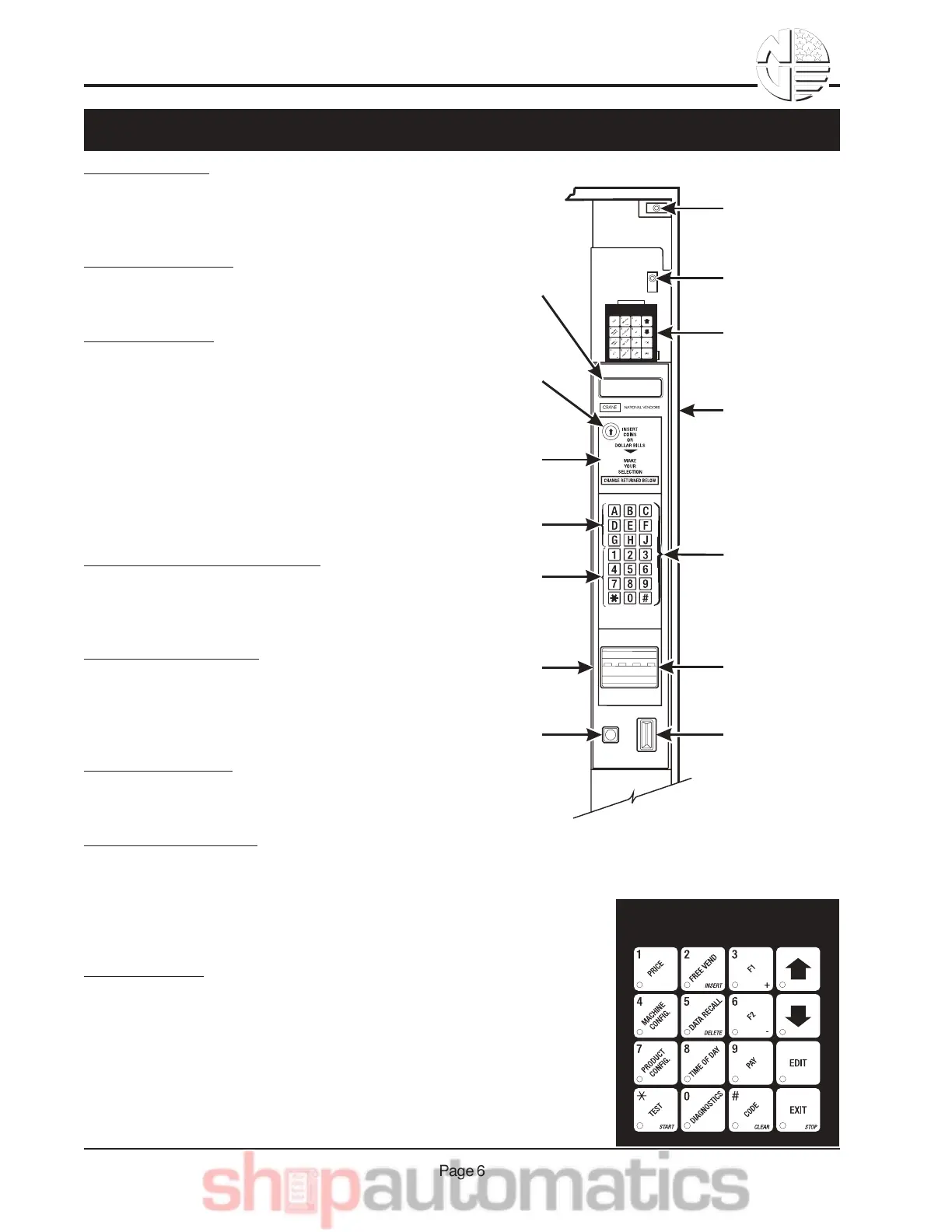
Interlock Switch. When the cabinet door is
open, this switch turns off the glass heater,
optional fan (if so equipped) and turns on the
service light (not present on all models).
Low Voltage Switch. Informs the controller
software of the main door open or closed sta-
tus.
Message Display. This is how the merchan-
diser communicates with the outside world.
Customers can see messages about how
much money they have put into the merchan-
diser. The message display also tells cus-
tomers when a selection is sold out and when
vending is free, inhibited, or discounted. The
message display shows you what you are
doing when you program the merchandiser,
and can show you what is wrong if there is a
failure.
Free Vend Keyswitch (optional). This allows
someone (other than maintenance people) to
set the merchandiser to free vend without
opening the door.
Selection Switch Panel. The customer uses
these switches to make selections. Also,
maintenance people may use this switch
panel during programming and other support
modes.
Coin Return Button. Pressing this button
returns any coins that have been paid into the
merchandiser prior to a vend.
Bill Acceptor (Optional). Accepts bills in
various denominations, depending upon the type of bill validator, and how the machine is configured.
Service Keypad. The service keypad is located at the top of the mon-
etary panel. It gives service personnel the means to program, retrieve
data from, and view diagnostic information about, the merchandiser.
6",-%"7.& 1,8& 9,8*21-"%.

Table of Contents

Related product manuals