EasyManua.ls Logo

Danfoss VACON OPTE3 - The OPTC6 Option Board; The OPTC6 Option Board Layout; The Jumpers in the OPTC6 Option Board

Danfoss VACON OPTE3
64 pages
Print Icon
To Next Page IconTo Next Page
To Next Page IconTo Next Page
To Previous Page IconTo Previous Page
To Previous Page IconTo Previous Page
Loading...
A
CAN bus connector pin 3 (shield) is connected to the
drive chassis with a high-impedance RC circuit. This
option is recommended when equipotential bond-
ing is poor.
B
CAN bus connector pin 3 (shield) is connected di-
rectly to the drive chassis (factory default setting).
This option is recommended when equipotential
bonding is good.
C
CAN bus connector pin 3 is not connected.
Illustration 34: The Settings of the Jumper X6, CAN Bus Cable Shield Grounding, positions A, B, and C
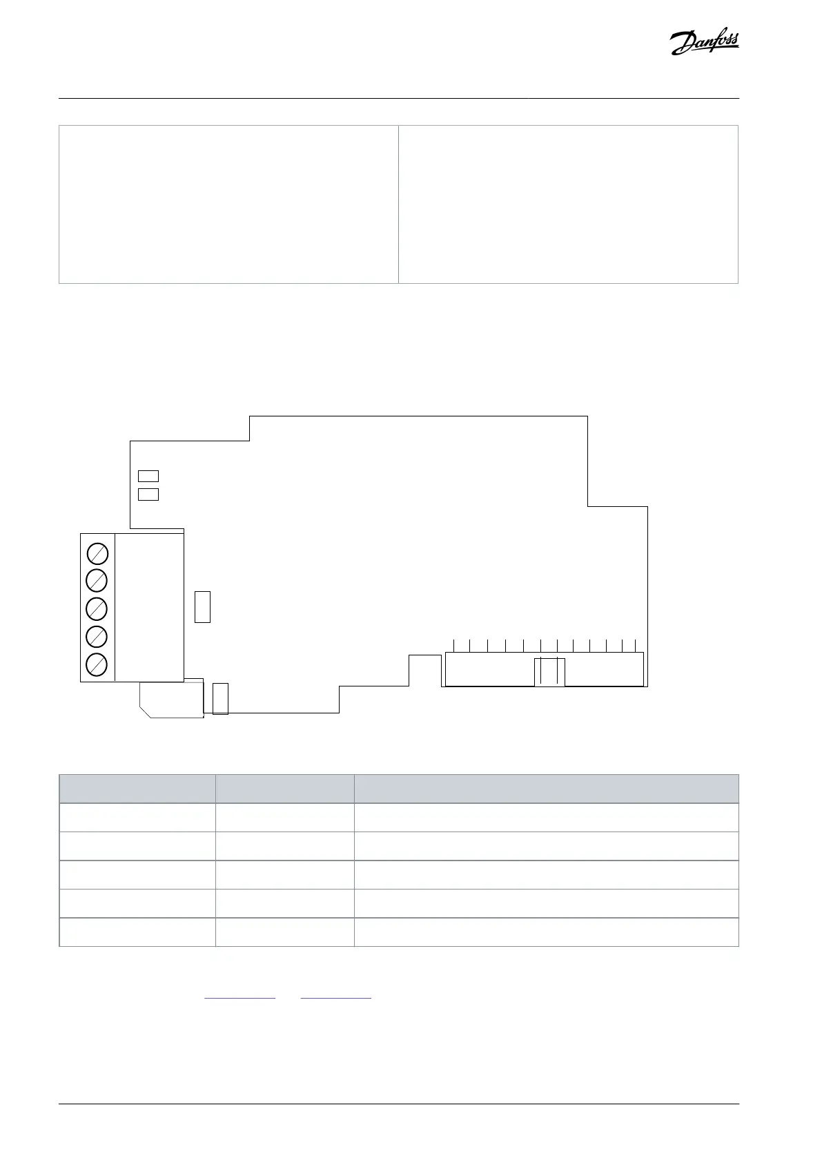
6.2 The OPTC6 Option Board
6.2.1 The OPTC6 Option Board Layout
Fieldbus is connected to the OPTC6 option board using a 5-pin screw plug.
2
1
3
4
5
A
M
X6
X1
e30bi090.10
Illustration 35: The OPTC6 Option Board Layout
Table 14: The Connections of the Option Board
Signal
Connector pin
Description
V-
1
CAN GND V- isolated digital ground reference
CAN LO
2
CAN LO
Shield connector
3
Shield connector
CAN HI
4
CAN HI
V+
N/A
Not connected for CANopen.
6.2.2 The Jumpers in the OPTC6 Option Board
For the jumper settings, see Illustration 36 and Illustration 37.
AN338644703080en-0002 / DPD0215650 | Danfoss A/S © 2022.08
CAN Type and Other Fieldbus
Option Boards
VACON® RS485 and CAN Bus Option Boards
Installation Guide

Table of Contents

Related product manuals