EasyManua.ls Logo

Danfoss VLT - Page 43

Danfoss VLT
138 pages
Print Icon
To Next Page IconTo Next Page
To Next Page IconTo Next Page
To Previous Page IconTo Previous Page
To Previous Page IconTo Previous Page
Loading...
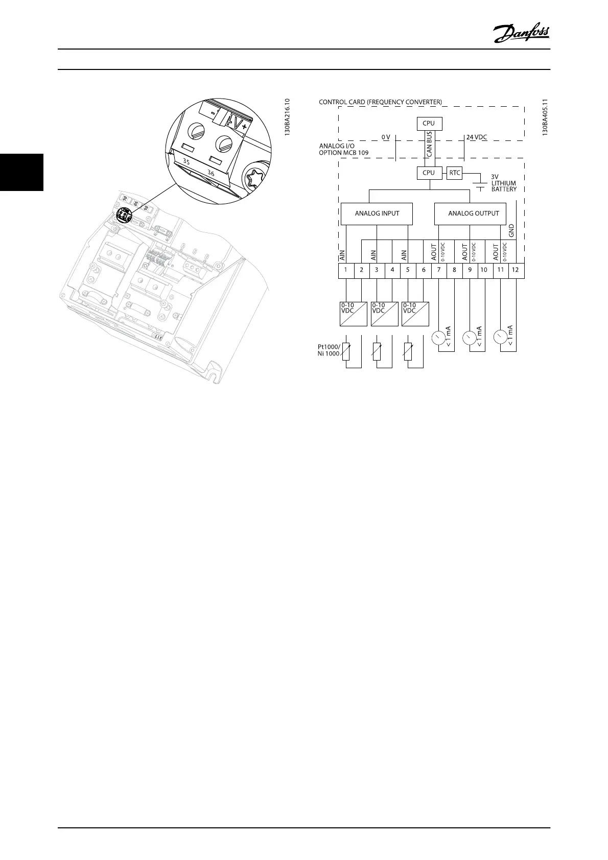
Illustration 3.11 Connection to 24 V Backup Supplier (A5-C2).
3.1.9 Analog I/O option MCB 109
The Analog I/O card is supposed to be used in e.g. the
following cases:
Providing battery back-up of clock function on
control card
As general extension of analog I/O selection
available on control card, e.g. for multi-zone
control with three pressure transmitters
Turning frequency converter into de-central I/O
block supporting Building Management System
with inputs for sensors and outputs for operating
dampers and valve actuators
Support Extended PID controllers with I/Os for set
point inputs, transmitter/sensor inputs and
outputs for actuators.
Illustration 3.12 Principle diagram for Analog I/O mounted in
frequency converter.
Analog I/O configuration
3 x Analog Inputs, capable of handling following:
0 - 10 V DC
OR
0-20 mA (voltage input 0-10 V) by mounting a
510 resistor across terminals (see NOTE)
4-20 mA (voltage input 2-10 V) by mounting a
510 resistor across terminals (see NOTE)
Ni1000 temperature sensor of 1000 at 0° C.
Specifications according to DIN43760
Pt1000 temperature sensor of 1000 at 0° C.
Specifications according to IEC 60751
3 x Analog Outputs supplying 0-10 V DC.
Drive Selection
VLT
®
Refrigeration Drive Design Guide
42 MG16G102 - VLT
®
is a registered Danfoss trademark
3
3

Table of Contents

Other manuals for Danfoss VLT

Related product manuals