EasyManua.ls Logo

Denon AVR-X6200W - Page 181

Denon AVR-X6200W
218 pages
To Next Page IconTo Next Page
To Next Page IconTo Next Page
To Previous Page IconTo Previous Page
To Previous Page IconTo Previous Page
Loading...
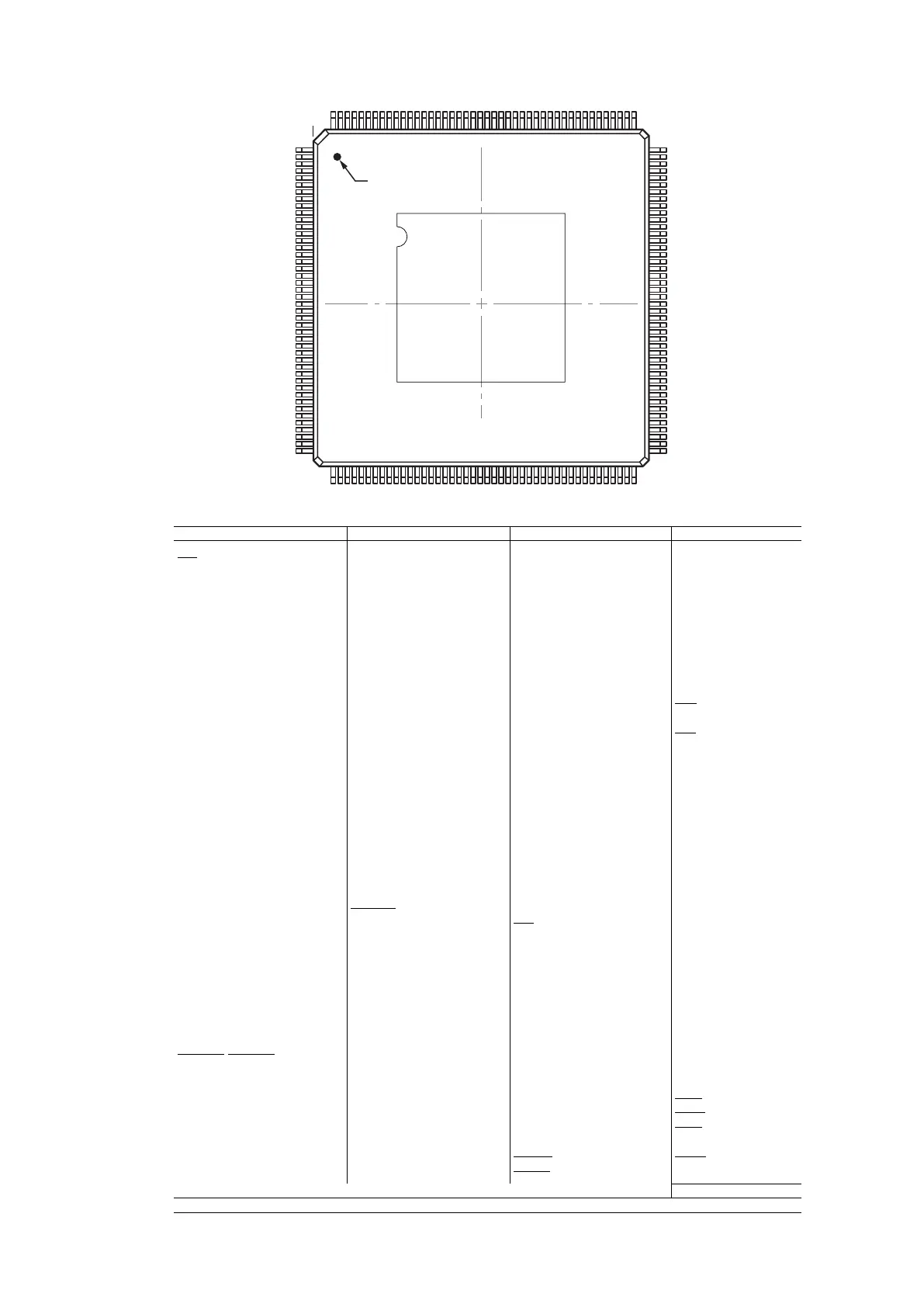
ADSP21487KSWZ4B(DIGITAL:U101,U201,U301,U401)
ADSP21487KSWZ3B Terminal Function
TOP VIEW
(PINS DOWN)
1
44
45
89
88
132
176
133
PIN 1
GND PAD
(PIN 177)
at BOTTOM
Pin Name Pin No. Pin Name Pin No. Pin Name Pin No. Pin Name Pin No.
SDDQM 1 V
DD
_
EXT
45 DAI_P10 89 V
DD
_
INT
133
MS0
2 DPI_P08 46 V
DD
_
INT
90 FLAG0 134
SDCKE 3 DPI_P07 47 V
DD
_
EXT
91 FLAG1 135
V
DD
_
INT
4 V
DD
_
INT
48 DAI_P20 92 FLAG2 136
CLK_CFG1 5 DPI_P09 49 V
DD
_
INT
93 NC 137
ADDR0 6 DPI_P10 50 DAI_P08 94 FLAG3 138
BOOT_CFG0 7 DPI_P11 51 DAI_P14 95 NC 139
V
DD
_
EXT
8 DPI_P12 52 DAI_P04 96 NC 140
ADDR1 9 DPI_P13 53 DAI_P18 97 V
DD
_
EXT
141
ADDR2 10 DPI_P14 54 DAI_P17 98 NC 142
ADDR3 11 DAI_P03 55 DAI_P16 99 V
DD
_
INT
143
ADDR4 12 NC 56 DAI_P12 100 TRST
144
ADDR5 13 V
DD
_
EXT
57 DAI_P15 101 NC 145
BOOT_CFG1 14 NC 58 V
DD
_
INT
102 EMU 146
GND 15 NC 59 DAI_P11 103 DATA0 147
ADDR6 16 NC 60 V
DD
_
EXT
104 DATA1 148
ADDR7 17 NC 61 V
DD
_
INT
105 DATA2 149
NC 18 V
DD
_
INT
62 BOOT_CFG2 106 DATA3 150
NC 19 NC 63 V
DD
_
INT
107 TDO 151
ADDR8 20 NC 64 AMI_ACK 108 DATA4 152
ADDR9 21 V
DD
_
INT
65 GND 109 V
DD
_
EXT
153
CLK_CFG0 22 NC 66 THD_M 110 DATA5 154
V
DD
_
INT
23 NC 67 THD_P 111 DATA6 155
CLKIN 24 V
DD
_
INT
68 V
DD
_
THD
112 V
DD
_
INT
156
XTAL 25 NC 69 V
DD
_
INT
113 DATA7 157
ADDR10 26 WDTRSTO
70 V
DD
_
INT
114 TDI 158
SDA10 27 NC 71 MS1
115 SDCLK 159
V
DD
_
EXT
28 V
DD
_
EXT
72 V
DD
_
INT
116 V
DD
_
EXT
160
V
DD
_
INT
29 DAI_P07 73 WDT_CLKO 117 DATA8 161
ADDR11 30 DAI_P13 74 WDT_CLKIN 118 DATA9 162
ADDR12 31 DAI_P19 75 V
DD
_
EXT
119 DATA10 163
ADDR17 32 DAI_P01 76 ADDR23 120 TCK 164
ADDR13 33 DAI_P02 77 ADDR22 121 DATA11 165
V
DD
_
INT
34 V
DD
_
INT
78 ADDR21 122 DATA12 166
ADDR18 35 NC 79 V
DD
_
INT
123 DATA14 167
RESETOUT
/RUNRSTIN 36 NC 80 ADDR20 124 DATA13 168
V
DD
_
INT
37 NC 81 ADDR19 125 V
DD
_
INT
169
DPI_P01 38 NC 82 V
DD
_
EXT
126 DATA15 170
DPI_P02 39 NC 83 ADDR16 127 SDWE
171
DPI_P03 40 V
DD
_
EXT
84 ADDR15 128 SDRAS 172
V
DD
_
INT
41 V
DD
_
INT
85 V
DD
_
INT
129 RESET 173
DPI_P05 42 DAI_P06 86 ADDR14 130 TMS 174
DPI_P04 43 DAI_P05 87 AMI_WR
131 SDCAS 175
DPI_P06 44 DAI_P09 88 AMI_RD
132 V
DD
_
INT
176
GND 177*
* at BOTTOM
181

Table of Contents

Other manuals for Denon AVR-X6200W

Related product manuals