EasyManua.ls Logo

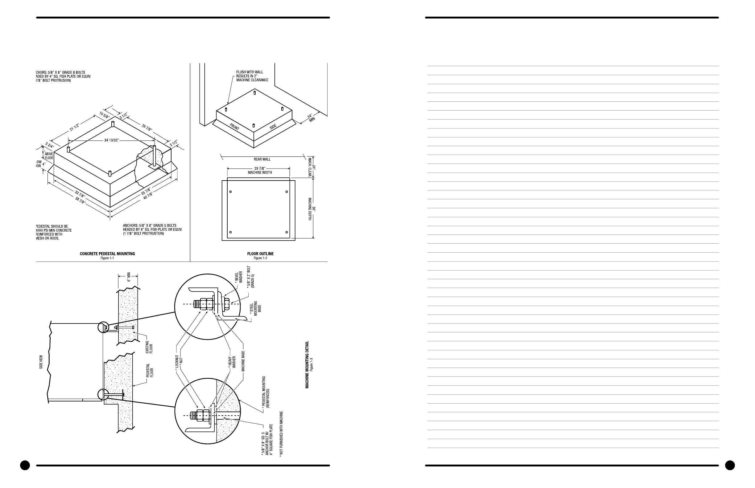
Dexter Laundry WCN40AA - Concrete Pedestal and Floor Mounting Details; T-600 Concrete Pedestal Mounting

Dexter Laundry WCN40AA
54 pages
Print Icon
To Next Page IconTo Next Page
To Next Page IconTo Next Page
To Previous Page IconTo Previous Page
To Previous Page IconTo Previous Page
Loading...
T-600 Mounting Pad Dimensions
20 21
Part # 8533-035-002 4/22 Part # 8533-035-002 4/22
Notes
Machine
Mounting
Installation
& Operation
Trouble-
shooting
Machine
Service
Electrical
Wiring
Parts
Data
Coin
Handling
Maintenance

Table of Contents

Related product manuals