EasyManua.ls Logo

Dexter Laundry WCN40AA - T-400 Electrical Schematics and Wiring Diagrams; T-400 Schematic Diagram; T-400 Wiring Diagram

Dexter Laundry WCN40AA
54 pages
Print Icon
To Next Page IconTo Next Page
To Next Page IconTo Next Page
To Previous Page IconTo Previous Page
To Previous Page IconTo Previous Page
Loading...
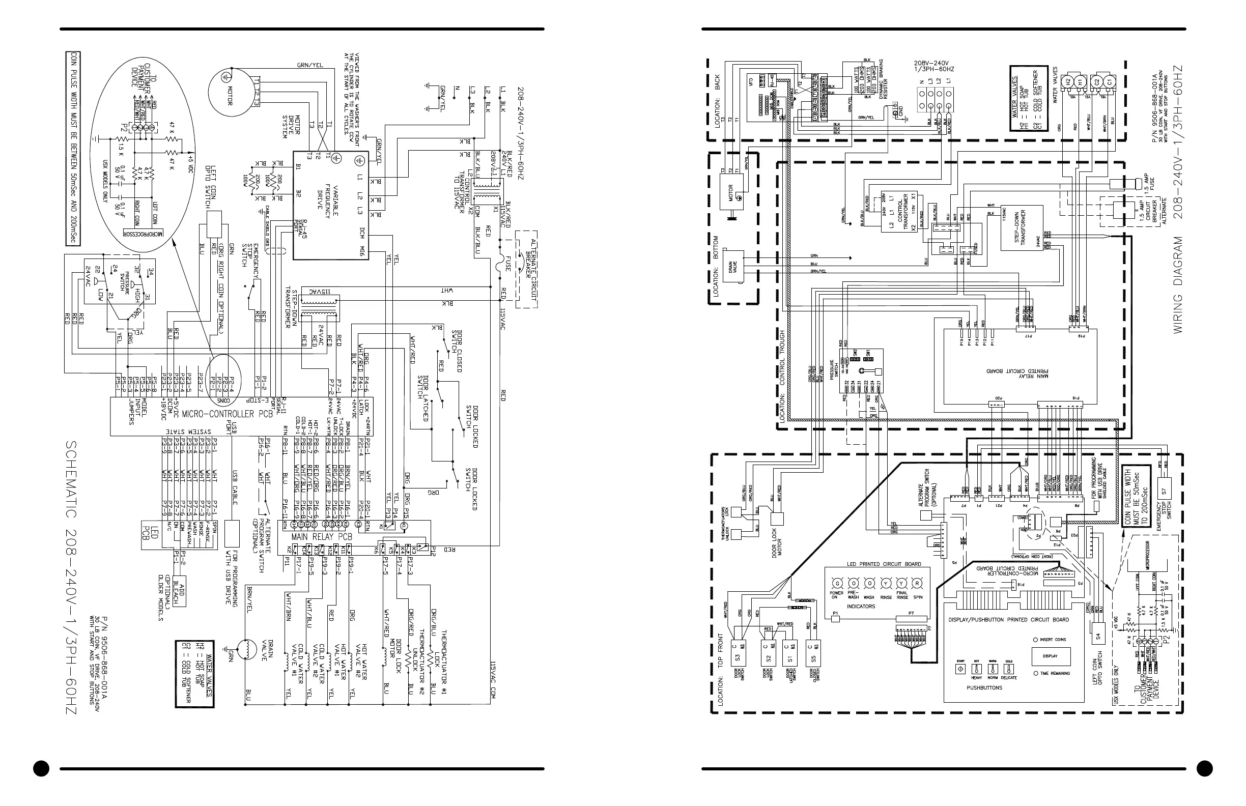
T-400: 208-240V Wiring
T-400: 208-240V Schematic
36 37
Part # 8533-035-002 4/22 Part # 8533-035-002 4/22
Machine
Mounting
Installation
& Operation
Trouble-
shooting
Machine
Service
Electrical
Wiring
Parts
Data
Coin
Handling
Maintenance

Table of Contents

Related product manuals