EasyManua.ls Logo

Dexter Laundry WCN40AA - Coin Handling Group Components; Coin Box, Latch, and Acceptor Parts

Dexter Laundry WCN40AA
54 pages
Print Icon
To Next Page IconTo Next Page
To Next Page IconTo Next Page
To Previous Page IconTo Previous Page
To Previous Page IconTo Previous Page
Loading...
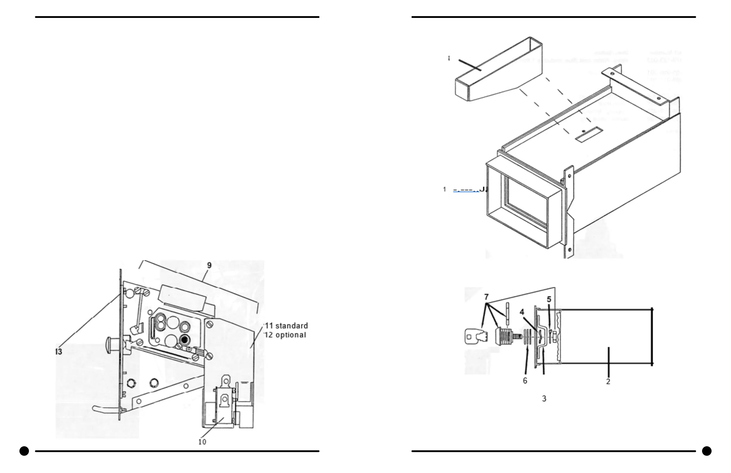
Coin Handling Group
Key Part Number Description Qty
1 9942-026-005 Vault Assy WCN25 1
1 9942-026-006 Vault Assy WCN40 1
* 9545-008-026 Screw, Vault Mtg 4
NOTE: COIN BOX AND HARDWARE KIT AND COIN BOX LOCK NOT INCLUDED WITH MACHINE.
2 9732-122-001 Kit, Coin Box W/Hardware (includes 3 thru 6) 1
3 9349-033-001 Latch, Coin Box 1
4 8641-569-002 Washer, Wave 1
5 8641-583-001 Washer, Keeper 1
6 8641-581-008 Washer, Spacer- Thick 2
6 8641-581-010 Washer, Spacer- Thin 4
7 8650-012-003 Lock, Coin Box (w/key) 1
8 9940-014-004 Chute Assy., Coin 1
* 9545-008-001 Screw, Chute Mtg 1
11 9119-025-002 Coin Acceptor chute without penny rejector (standard) 1
9 9021-001-010 Acceptor, Coin 1
* 9545-020-002 Screw, Acceptor Mtg 4
* 8640-424-002 Nut. 4
10 9732-126-001 Switch, Coin 1
12 9119-025-001 Coin Acceptor chute with penny rejector (optional) opt
13 9486-133-001 Button Coin Return retainer 1
*Not illustrated
104 105
Part # 8533-035-002 4/22 Part # 8533-035-002 4/22
105
Machine
Mounting
Installation
& Operation
Trouble-
shooting
Machine
Service
Electrical
Wiring
Parts
Data
Coin
Handling
Maintenance

Table of Contents

Related product manuals