EasyManua.ls Logo

DIGITAL-LOGIC Microspace MSM586SEN - 18 Assemblings View; MSM586 SV;SN - SEV;SEN V2.3 A;2.4;2.5

DIGITAL-LOGIC Microspace MSM586SEN
348 pages
Print Icon
To Next Page IconTo Next Page
To Next Page IconTo Next Page
To Previous Page IconTo Previous Page
To Previous Page IconTo Previous Page
Loading...
DIGITAL-LOGIC AG MSM586SEN/SEV Manual V1.5E
113
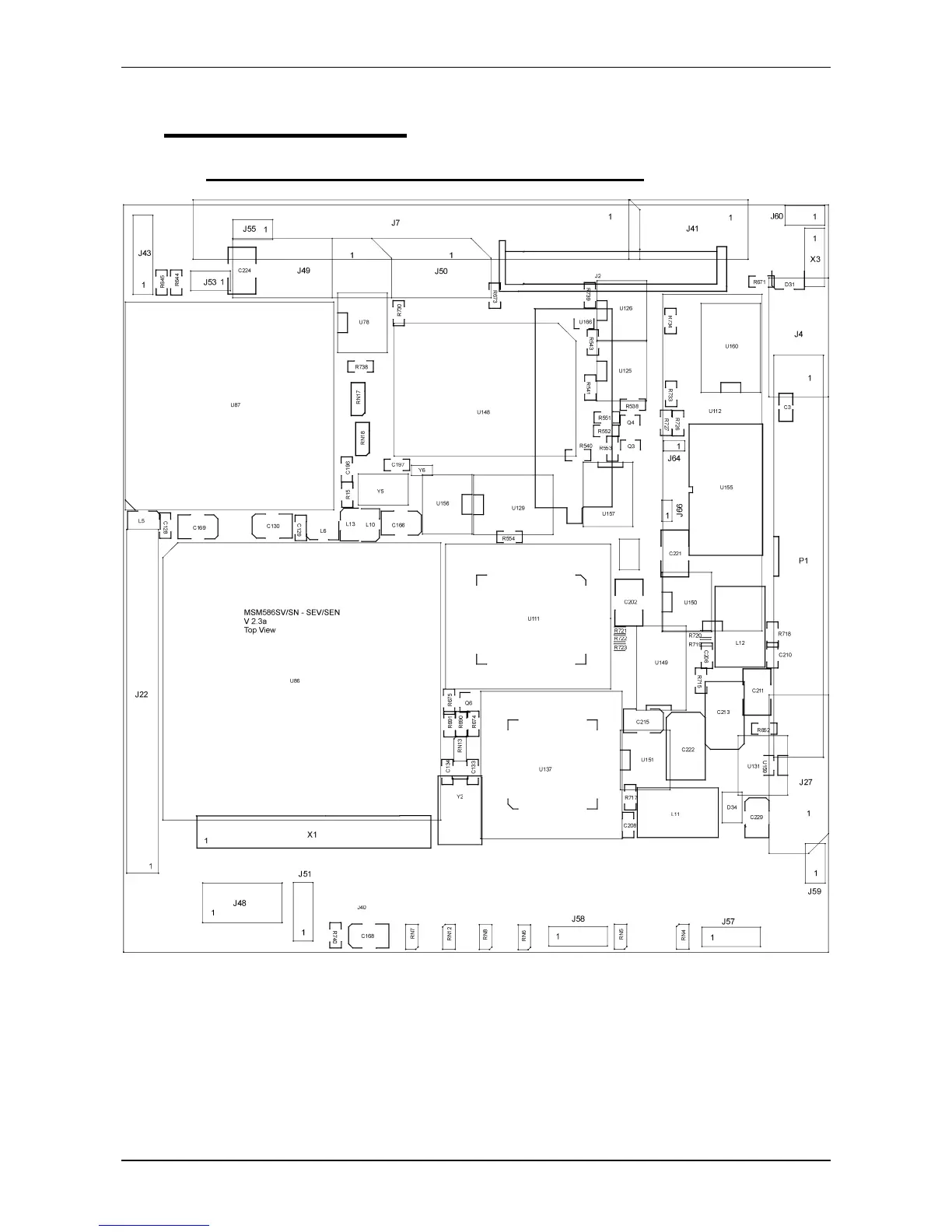
18 ASSEMBLINGS VIEW
18.1 MSM586SV/SN – SEV/SEN V2.3a/2.4/2.5

Table of Contents