EasyManua.ls Logo

Electrolux T5675 - Price Reduction (2 K)

Electrolux T5675
174 pages
Print Icon
To Next Page IconTo Next Page
To Next Page IconTo Next Page
To Previous Page IconTo Previous Page
To Previous Page IconTo Previous Page
Loading...
I/Omodules
111
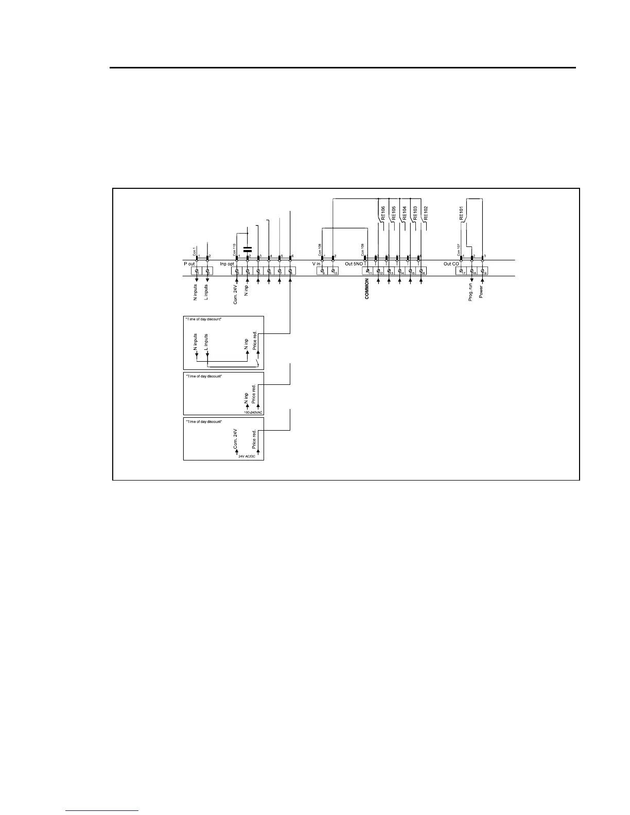
14.4.4Pricereduction(2K)
Bymaintaininganactivated(high)signalonconnection5("Pricered"),thepriceoftheprogramcan
bereduced.Thisfunctionhasanumberofuses,includingprovidingreductionsduringaspecic
periodoftheday.Whilstthesignalremainsactive(high),thepriceoftheprogramisreduced(orthe
timeisincreasedontimeprograms),bythepercentageenteredinthepriceprogrammingmenu.
169
g.7441

Table of Contents

Other manuals for Electrolux T5675

Related product manuals