EasyManua.ls Logo

Empire Mantis BF28BM-5 - Bay Window Mantis Clearance to Combustibles

Default Icon
52 pages
Print Icon
To Next Page IconTo Next Page
To Next Page IconTo Next Page
To Previous Page IconTo Previous Page
To Previous Page IconTo Previous Page
Loading...
28743-0-0711Page 18
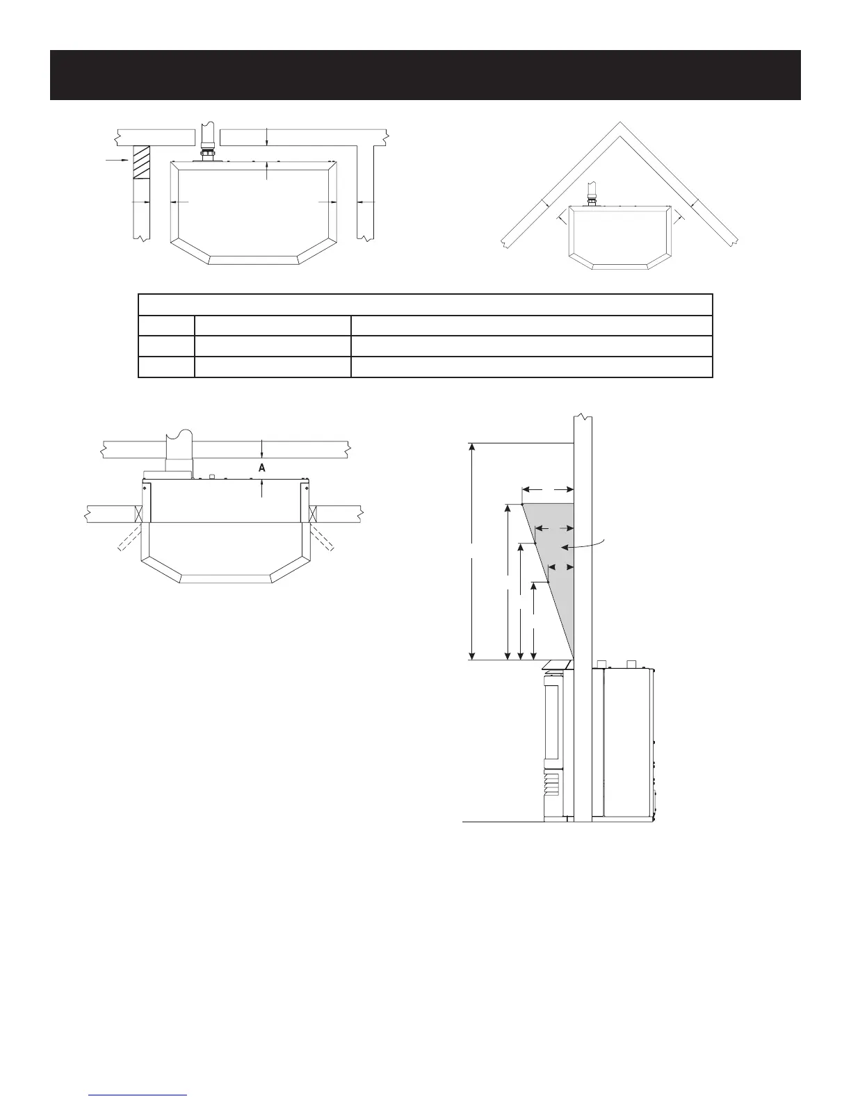
BAY WINDOW MANTIS CLEARANCE TO COMBUSTIBLES
Freestanding Clearances
A Rear Wall to Heater 2” (1-1/4” for coaxial venting)
B Side Wall to Heater 0” (4” recommended for door clearance)
C Corner Installation 0”
Note: The Mantis Power-Vent High-Efciency Fireplace has been tested and approved for zero clearance to combustible materials. It
is recommended that clearances as listed above should be maintained to allow for removal of the product for servicing.
C
C
A
BB
ACCESS
PANEL
Figure 19
Figure 20
Mantel and Ceiling Clearances
Figure 22
Coaxial Venting Installation Shown
Single Flue requires surround for combustion air.
Figure 21
12”
18”
24”
8”
6”
4”
COMBUSTIBLE TRIM AND MANTELS
ALLOWED IN SHADED AREA
40”
CEILING

Related product manuals