EasyManua.ls Logo

Enertech XT024 - APSMA Pump Sharing Module

Enertech XT024
56 pages
Print Icon
To Next Page IconTo Next Page
To Next Page IconTo Next Page
To Previous Page IconTo Previous Page
To Previous Page IconTo Previous Page
Loading...
25
IOM, XT Models Enertech Global
+
-
DC
Bridge
LED
Diode
RY1
24VAC input
from unit #1
+
-
Diode
RY2
24VAC input
from unit #2
RY1
RY2
240VAC input
240VAC to pump(s)
24VAC 24VAC
Figure 1: Board Layout
Figure 2: Board Schematic
240V IN
240V OUT
Relay Relay
240VAC
Power Source
240VAC
to Pump(s)
24VAC
connection
to unit #2
(Y1 & C From Thermostat)
24VAC
connection
to unit #1
(Y1 & C From Thermostat)
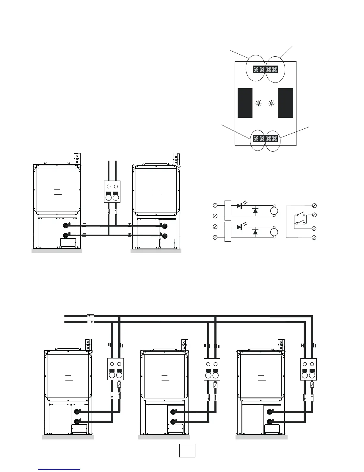
Figure 16: APSMA Module Layout
Figure 17: APSMA Module Wiring Schematic
APSMA Pump Sharing Module
The pump sharing module, part number APSMA,
is designed to allow two units to share one ow
center. With the APSMA module, either unit can
energize the pump(s). Connect the units and ow
center as shown in Figure 16, below. Figure 17
includes a schematic of the board. The module
must be mounted in a NEMA enclosure or inside
the unit control box. Local code supersedes any
recommendations in this document.
Flow
Center
Hose
Kit
Loop Field
P/T Ports
air
coil
Source Out
Source In
P/T Ports
P/T Ports
air
coil
Source Out
Source In
P/T Ports
~
~
Shut O
Valves
Shut O
Valves
Equipment Pad
2” Polyethylene Foam
Equipment Pad
2” Polyethylene Foam
Flow
Center
Loop Field
P/T Ports
air
coil
Source Out
Source In
P/T Ports
~
Shut O
Valves
Flow
Center
P/T Ports
air
coil
Source Out
Source In
P/T Ports
Shut O
Valves
Flow
Center
P/T Ports
air
coil
Source Out
Source In
P/T Ports
Shut O
Valves
~
Check
Valve
Direction
of Flow
Check
Valve
Check
Valve
Direction
of Flow
Direction
of Flow
Direction
of Flow
Equipment Pad
2” Polyethylene Foam
Equipment Pad
2” Polyethylene Foam
Single Shared Flow Center, Dual Unit Piping Example
Single Shared Loop Field, Individual Flow Center and
Unit Piping Example
+
-
DC
Bridge
LED
Diode
RY1
24VAC input
from unit #1
+
-
Diode
RY2
24VAC input
from unit #2
RY1
RY2
240VAC input
240VAC to pump(s)
24VAC 24VAC
Figure 1: Board Layout
Figure 2: Board Schematic
240V IN
240V OUT
Relay Relay
240VAC
Power Source
240VAC
to Pump(s)
24VAC
connection
to unit #2
(Y1 & C From Thermostat)
24VAC
connection
to unit #1
(Y1 & C From Thermostat)
Section 5: Unit Piping Installation

Table of Contents

Related product manuals