EasyManua.ls Logo

Fimer PVS-100-TL - Overall Dimensions of the Inverter; Overall Dimensions of the Mounting Bracket

Fimer PVS-100-TL
142 pages
Print Icon
To Next Page IconTo Next Page
To Next Page IconTo Next Page
To Previous Page IconTo Previous Page
To Previous Page IconTo Previous Page
Loading...
EN
32
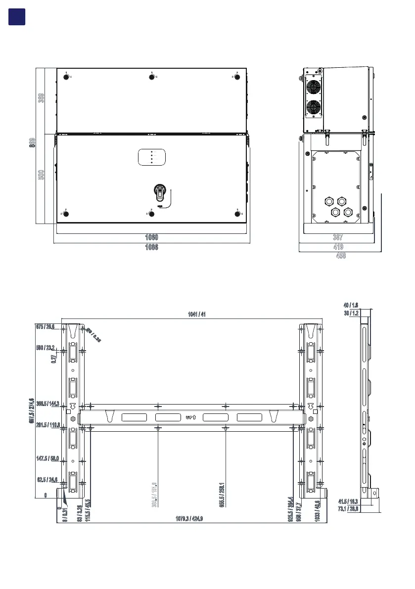
3.5.7 Overall dimensions of the inverter
The overall dimensions, not including the mounting bracket (03), are expressed in millimeters.
369
500
1060
1086
869
387
458
419
3.5.8 Overall dimensions of the mounting bracket
The dimensions of the wall mounting bracket (03) are expressed in millimeters and inches.
73.1 / 28.8
41.5 / 16.3
30 / 1.2
40 / 1.6
Ø
9 / 0.35
1041 / 41
675 / 26.6
590 / 23.2
697.5 / 274.6
0.27
0
8 / 0.31
366.5 / 144.3
281.5 / 110.8
147.5 / 58.0
1079.3 / 424.9
83 / 3.26
115.5 / 45.5
385.5 / 151.8
655.5 / 258.1
925.5 / 364.4
958 / 37.7
1033 / 40.6
62.5 / 24.6
0

Table of Contents

Related product manuals