EasyManua.ls Logo

Flexim FLUXUS G601 - Lamb Wave Transducers (Zone 2)

Flexim FLUXUS G601
244 pages
Print Icon
To Next Page IconTo Next Page
To Next Page IconTo Next Page
To Previous Page IconTo Previous Page
To Previous Page IconTo Previous Page
Loading...
B Technical Data FLUXUS G60x
UMFLUXUS_G6V4-2EN, 2011-03-29 215
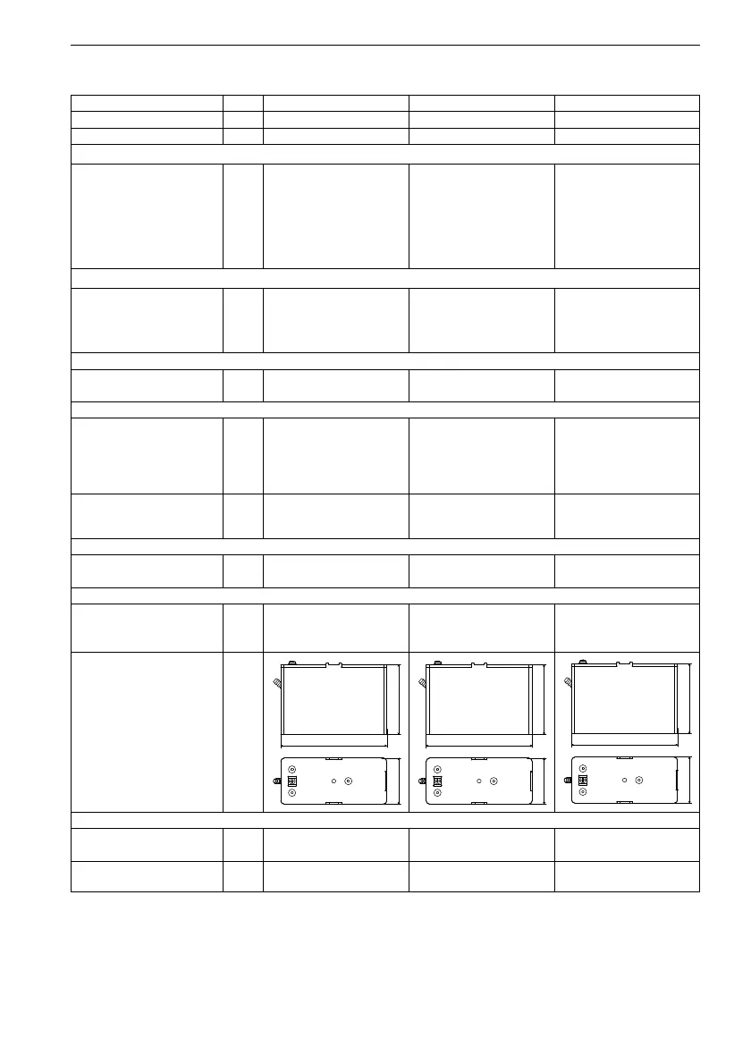
Lamb Wave Transducers (zone 2)
technical type GRG1NH3 GRH1NH3 GRK1NH3
order code GLG-NA2NL GLH-NA2NL GLK-NA2NL
transducer frequency MHz 0.2 0.3 0.5
medium pressure
1
min. extended bar metal pipe: 10 metal pipe: 10 metal pipe:
10 (d > 120 mm)
5 (d < 120 mm)
min. bar metal pipe: 15
plastic pipe: 1
metal pipe: 15
plastic pipe: 1
metal pipe:
15 (d > 120 mm)
10 (d < 120 mm)
plastic pipe: 1
inner pipe diameter d
min. extended mm 190 120 60
min. recommended mm 220 140 80
max. recommended mm 900 600 300
max. extended mm 1600 1000 500
pipe wall thickness
min. mm 11 7 4
max. mm 23 15 9
material
housing PPSU
with stainless
steel cap and
transducer shoe
304
(1.4301)
PPSU
with stainless
steel cap and
transducer shoe
304
(1.4301)
PPSU
with stainless
steel cap and
transducer shoe
304
(1.4301)
contact surface PPSU PPSU PPSU
degree of protection
according to IEC/
EN 60529
IP65 IP65 IP65
transducer cable
type 1699 1699 1699
length m 5 5 5
dimensions
length l mm 136.5 136.5 136.5
width bmm595959
height h mm 90.5 90.5 90.5
dimensional drawing
operating temperature
min. °C -40 -40 -40
max. °C +170 +170 +170
temperature
compensation
xxx
l
h
b
l
h
b
l
h
b

Table of Contents

Related product manuals