EasyManua.ls Logo

Flintec FT-112 - Page 101

Flintec FT-112
170 pages
Print Icon
To Next Page IconTo Next Page
To Next Page IconTo Next Page
To Previous Page IconTo Previous Page
To Previous Page IconTo Previous Page
Loading...
FT-112(D) Panel Weighing Indicator, Technical Manual, Rev.1.0.0, May 2019 Page 100 of 170
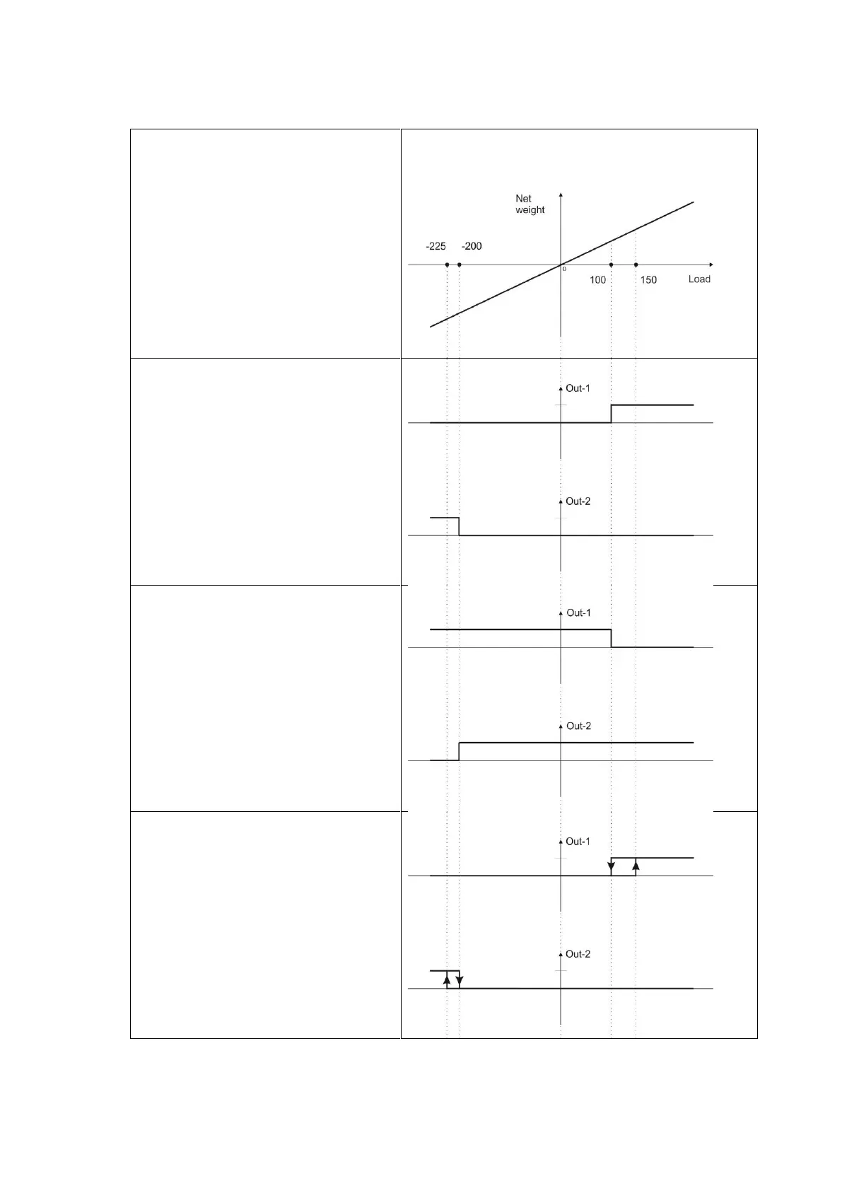
S NET Free setpoint of net weight
The digital output is activated with comparing the set point value and net weight value as shown below.
Example:
if SP1
SP1
LOW
SP1
HIGH
SP2
SP2
LOW
SP2
HIGH
= 100 kg or
= 100 kg
= 150 kg
= -200kg or
= -200kg
= -225kg
BAS-HI Basic, active high
Output is high if net weight is heavier
than setpoint.
(Default)
BAS-LO Basic, active low
Output is low if net weight is heavier
than setpoint.
THR-HI Threshold, active high
Output goes to high if net weight is
heavier than setpoint high. Returns the
low if the weight is less than setpoint
low.