EasyManua.ls Logo

Foster Solo Plus - Page 28

Foster Solo Plus
53 pages
Print Icon
To Next Page IconTo Next Page
To Next Page IconTo Next Page
To Previous Page IconTo Previous Page
To Previous Page IconTo Previous Page
Loading...
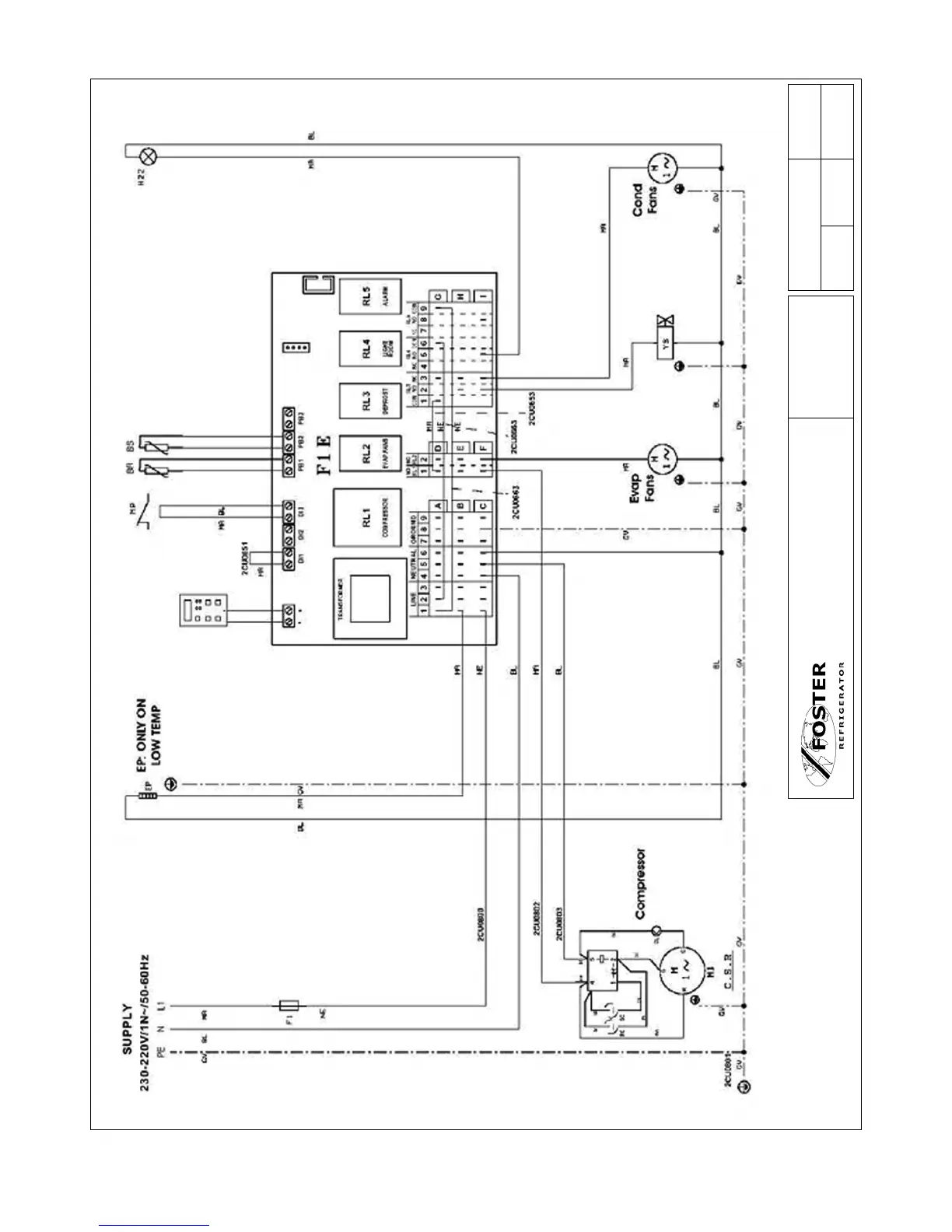
Colour Code
MA - BROWN
BL - BLUE
GV - GREEN/YELLOW
NE - BLACK
Drawing No. Sheet No.
81800LSB 1 of 1
Drawn By Approved Date
Title
SP1C
SP1HC
SPE
SP2HC
SP2LC
FOSTER REFRIGERATOR - A Division of ITW
Ltd.
SP3HC
SP3HC
SPE
26

Table of Contents

Related product manuals