EasyManua.ls Logo

Freestyle 2 Series - Circulator Zoning - Primary;Secondary

Freestyle 2 Series
136 pages
Print Icon
To Next Page IconTo Next Page
To Next Page IconTo Next Page
To Previous Page IconTo Previous Page
To Previous Page IconTo Previous Page
Loading...
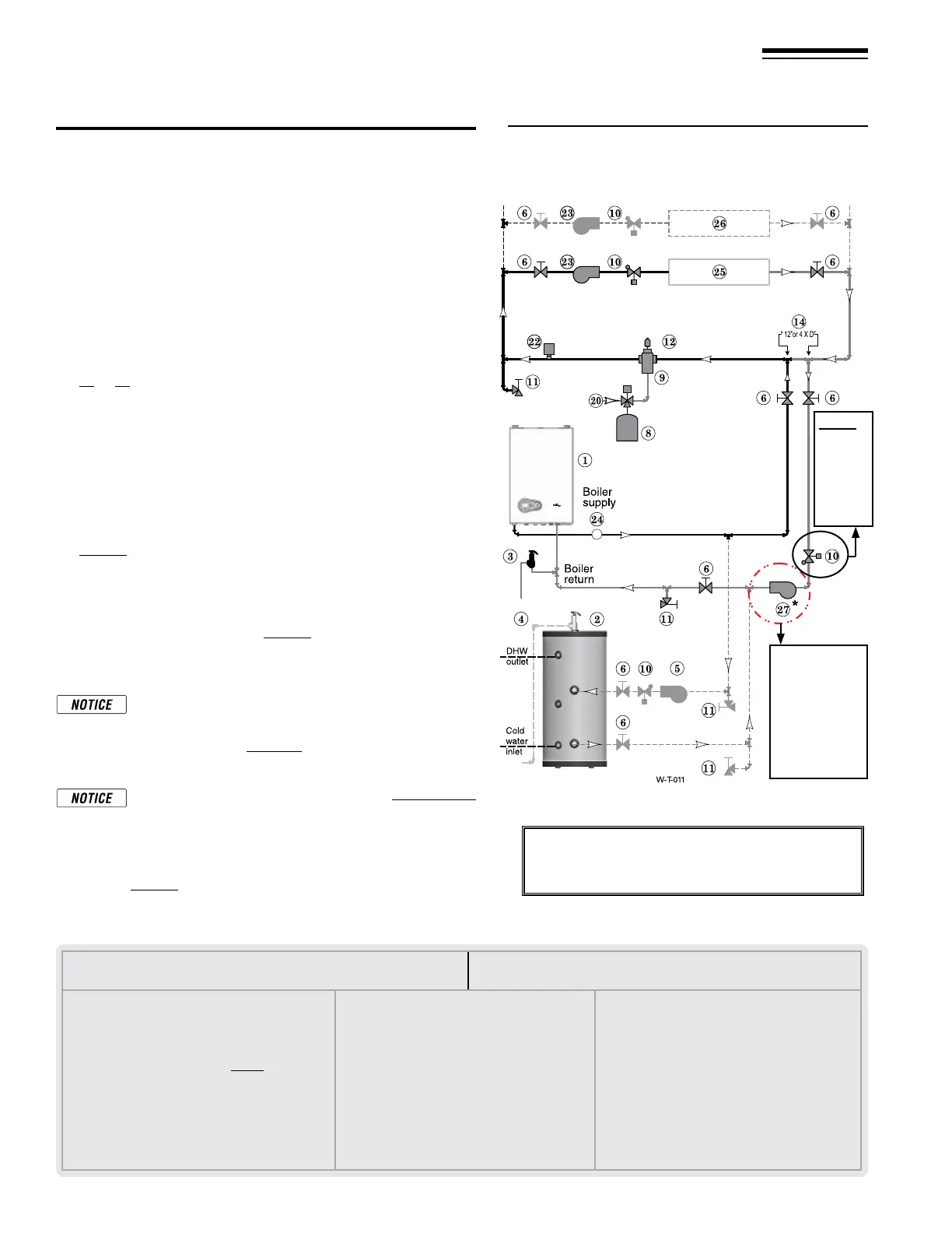
Figure 55 Circulator zoning plus optional DHW
piping
NOTE: (Applies to Figures 54, 55 & 56)
Add boiler and tank head loss for pump sizing.
Part number 550-142-950/0122
44
FreeStyle
®
series
2
wall mount gas-fired water boiler boiler manual
18 Primary/Secondary System Piping (continued)
Circulator zoning – primary/secondary
(Shown with optional DHW piping)
See Figure55.
1. is conguration is for circulator-zoned systems using a boiler
loop connected as a secondary circuit o of a primary system
loop. Systems zoned with circulators must pipe the boiler loop
as a secondary circuit as show.
2. Install a separate circulator (supplied by installer) for each zone
capable of delivering the proper ow and head as shown.
Expansion Tank required
1. Provide a system expansion tank following the guidelines on pages
39 or 41.
2. DO NOT use a closed-type tank if connecting to a boiler that is
equipped with an automatic vent.
Domestic Hot Water (DHW) tank, if used
1. DHW direct connection — Pipe from the near-boiler piping to
the DHW tanks boiler connections as shown.
2. DHW as zone—A DHW tank can be connected as a zone if a
DHW tank is NOT already connected to the boiler. To provide
DHW priority operation, use a zone controller. See notices on
page53 to ensure compliance with the 2007 Energy Act.
3. DHW Priority operation—e FreeStyle® control turns o space
heating to the HEAT zones during domestic water heating calls
on the DHW input. e MAX ON TIME setting can be adjusted
to limit how long this occurs. Set the MAX ON TIME to “0” to
disable domestic priority. See page67 for setting instructions.
4. If NOT connecting an indirect water heater, do not use the DHW
input or DHW Circulator output on the FreeStyle® control.
Overriding the Outdoor Reset function by connecting
space heating zones to inputs and outputs intended for
DHW applications may violate Section 303 of the 2007
Energy Act. See page135 for compliance information
and exemptions.
Wiring the Indirect tank aquastat to the Heating Only
Boiler, refer to Section 22 - Field Wiring.
Controlling the Zones
1. e FreeStyle® control can be used to control space heating only,
domestic water heating only, or both. Refer to eld wiring, begin-
ning on page52, for instructions on wiring to circulators.
2. e boiler and circulators can also be operated by a zone
controller.
LEGEND for Figure 55 and Figure 56 Note: This is a common legend for all piping diagrams, not
all items listed appear in every gure.
1 FreeStyle® wall mount boiler
2 Indirect Water Heater, if used
3
Relief valve, eld piped — MUST be piped to boiler return
connection on Combi boilers, Heating Only boilers relief
valve eld piped on supply.
4 Relief valve piping to drain — see page42
5 DHW circulator
6 Isolation valves
7 System circulator
8 Expansion tank, diaphragm type, if used
9 Air separator
10 Flow/check valves
11 Purge/drain valves
(Installer supplied)
12 Auto air vent
13 Zone valves
14 Primary/secondary connection (tees no more than
12 inches apart).
15 Expansion tank, closed type, if used (some chiller
systems may use a diaphragm-type expansion tank).
16 Water chiller
17 Check valve
18 Y-strainer
19 Balancing valve
20 Make-up water supply – Use applicable codes to
determine if backow preventers, pressure reducing
valves, and ll valves may be required.
21 By-pass pressure regulator, REQUIRED for zone valve
systems unless other provision is made.
22 High limit temperature control
23 Zone circulator
24 Pressure/temperature gauge, supplied with boiler, eld
piped.
25 Heating circuits
26 Additional heating circuits, if any
27 Boiler circulator,
*
(For Heating Only boilers, In the
Combi boiler the circulator is already inside the
boiler jacket).
28 Mixing valve, if any
(See Note,
below)
Note:
Do not
install
on
Combi
Boil-
ers.
Note: This
pump does
not run in
DHW mode
on Heating
Only Boil-
ers.

Table of Contents

Related product manuals