EasyManua.ls Logo

Freestyle 2 Series - Page 47

Freestyle 2 Series
136 pages
Print Icon
To Next Page IconTo Next Page
To Next Page IconTo Next Page
To Previous Page IconTo Previous Page
To Previous Page IconTo Previous Page
Loading...
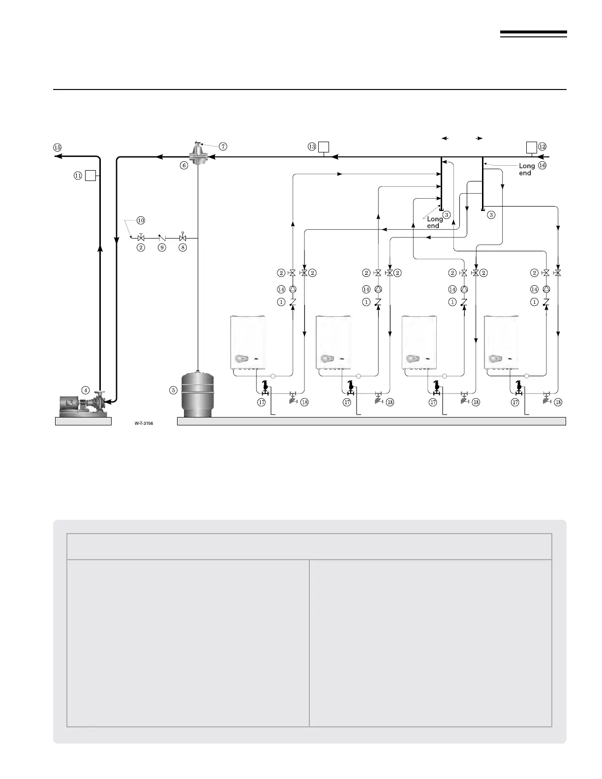
Figure 58 Piping schematic — typical piping for multiple FreeStyle
®
Heating Only boilers
Part number 550-142-950/0122
47
FreeStyle
®
series
2
wall mount gas-fired water boiler boiler manual
19
Multiple boiler installations
(continued)
Legend for Figure 58
1 Flow/check valve
2 Isolation valves (when used)
3 Cap
4 Primary circulator
5 Expansion tank (diaphragm type)
6 System air eliminator
7 System automatic air vent
8 Pressure reducing valve
9 Check valve or backow preventer, as required by appli-
cable codes.
10 Cold water supply
11 Supply water temperature control (when used).
12 Low water cuto (when used) (place above primary
header).
13 Water ow switch (when used).
14 Boiler circulators
15 System supply
16 System return
17 Boiler P/T gauge (eld supplied), relief valve and discharge
piping, installed per this boiler manual.
18 Purge/drain valve

Table of Contents

Related product manuals