EasyManua.ls Logo

GE af-600 fp - Page 107

GE af-600 fp
129 pages
Print Icon
To Next Page IconTo Next Page
To Next Page IconTo Next Page
To Previous Page IconTo Previous Page
To Previous Page IconTo Previous Page
Loading...
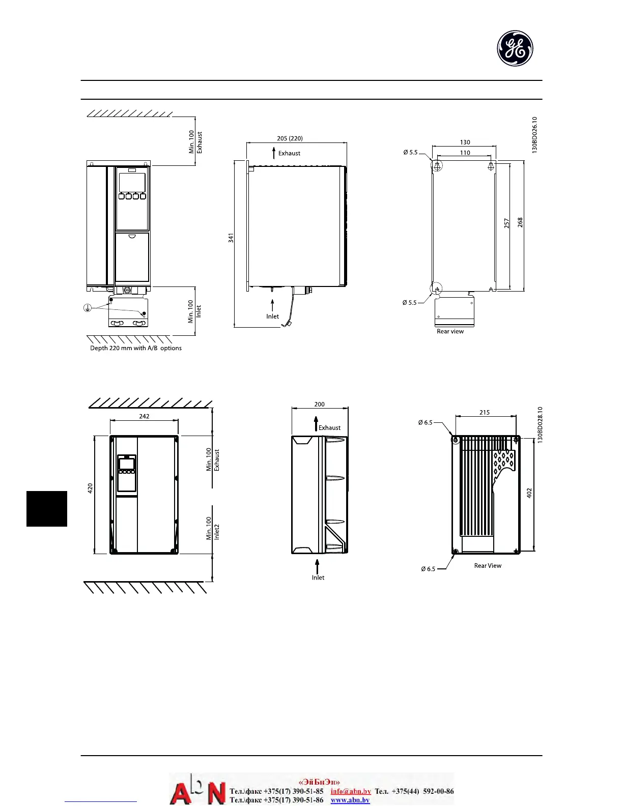
Figure 12.2 Unit Size 13
Figure 12.3 Unit Size 15
Specifications AF-600 FP Design and Installation Guide
12-4 DET-768A
122

Table of Contents

Other manuals for GE af-600 fp

Related product manuals