EasyManua.ls Logo

GE af-600 fp - 6 Application Set-Up Examples; Introduction; Application Examples

GE af-600 fp
129 pages
Print Icon
To Next Page IconTo Next Page
To Next Page IconTo Next Page
To Previous Page IconTo Previous Page
To Previous Page IconTo Previous Page
Loading...
6 Application Set-up Examples
6.1 Introduction
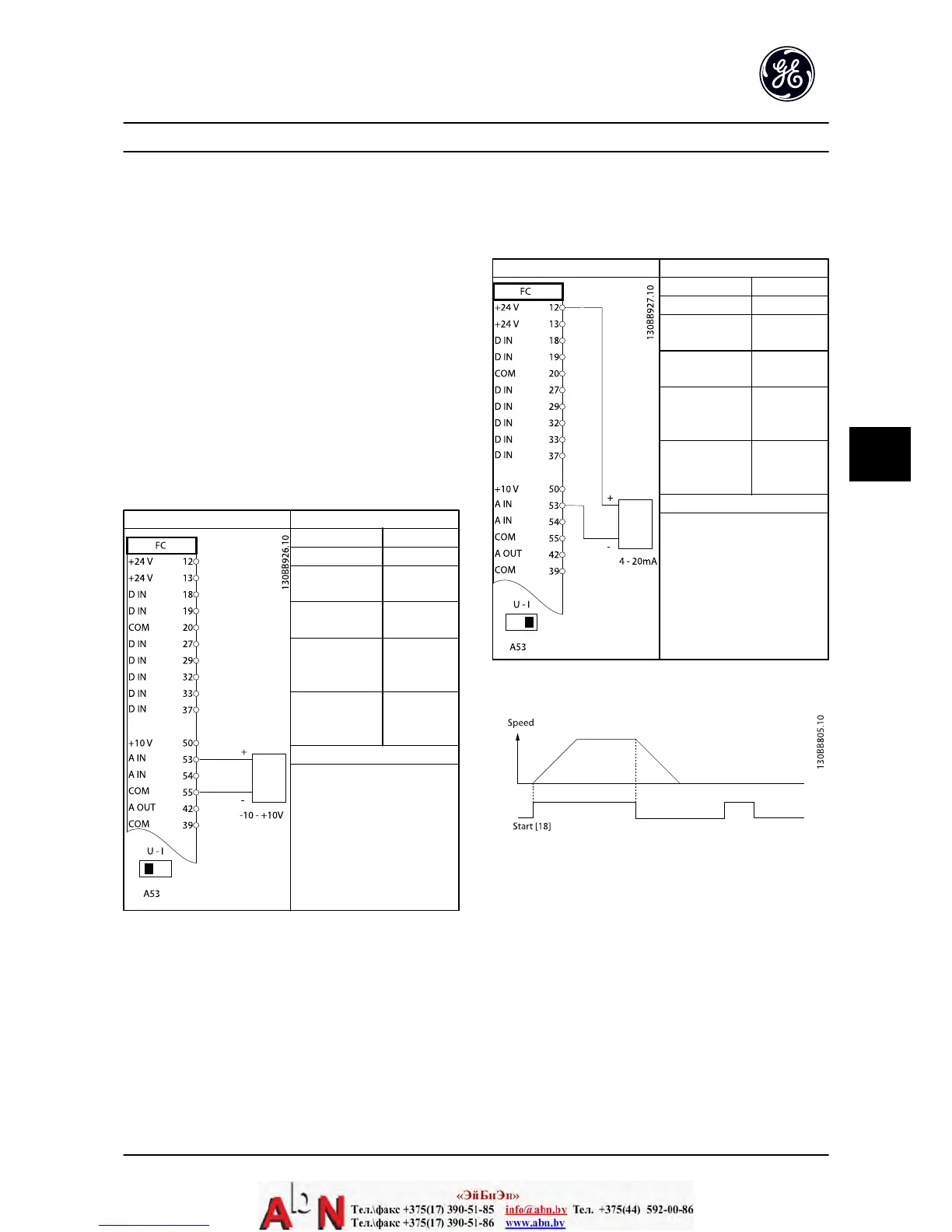
The examples in this section are intended as a quick
reference for common applications.
Parameter settings are the regional default values
unless otherwise indicated (selected in
K-03 Regional Settings)
Parameters associated with the terminals and
their settings are shown next to the drawings.
Where switch settings for analog terminals A53 or
A54 are required, these are also shown.
6.2 Application Examples
Parameters
Function Setting
AN-10 Terminal
53 Low Voltage 0.07 V*
AN-11 Terminal
53 High Voltage
10 V*
AN-14 Terminal
53 Low Ref./
Feedb. Value
0 RPM
AN-15 Terminal
53 High Ref./
Feedb. Value
1500 RPM
* = Default Value
Notes/comments:
Table 6.1 Analog Speed Reference (Voltage)
Parameters
Function Setting
AN-12 Terminal
53 Low Current
4 mA*
AN-13 Terminal
53 High Current
20 mA*
AN-14 Terminal
53 Low Ref./
Feedb. Value
0 RPM
AN-15 Terminal
53 High Ref./
Feedb. Value
1500 RPM
* = Default Value
Notes/comments:
Table 6.2 Analog Speed Reference (Current)
Figure 6.1
Application Set-up Examples AF-600 FP Design and Installation Guide
DET-768A 6-1
6
6

Table of Contents

Other manuals for GE af-600 fp

Related product manuals