EasyManua.ls Logo

GE af-600 fp - Fuses and Tables

GE af-600 fp
129 pages
Print Icon
To Next Page IconTo Next Page
To Next Page IconTo Next Page
To Previous Page IconTo Previous Page
To Previous Page IconTo Previous Page
Loading...
2.5 Electrical Installation
This section contains detailed instructions for wiring the
adjustable frequency drive. The following tasks are
described.
Wiring the motor to the adjustable frequency
drive output terminals
Wiring the AC line power to the adjustable
frequency drive input terminals
Connecting control and serial communication
wiring
After power has been applied, checking input
and motor power; programming control terminals
for their intended functions
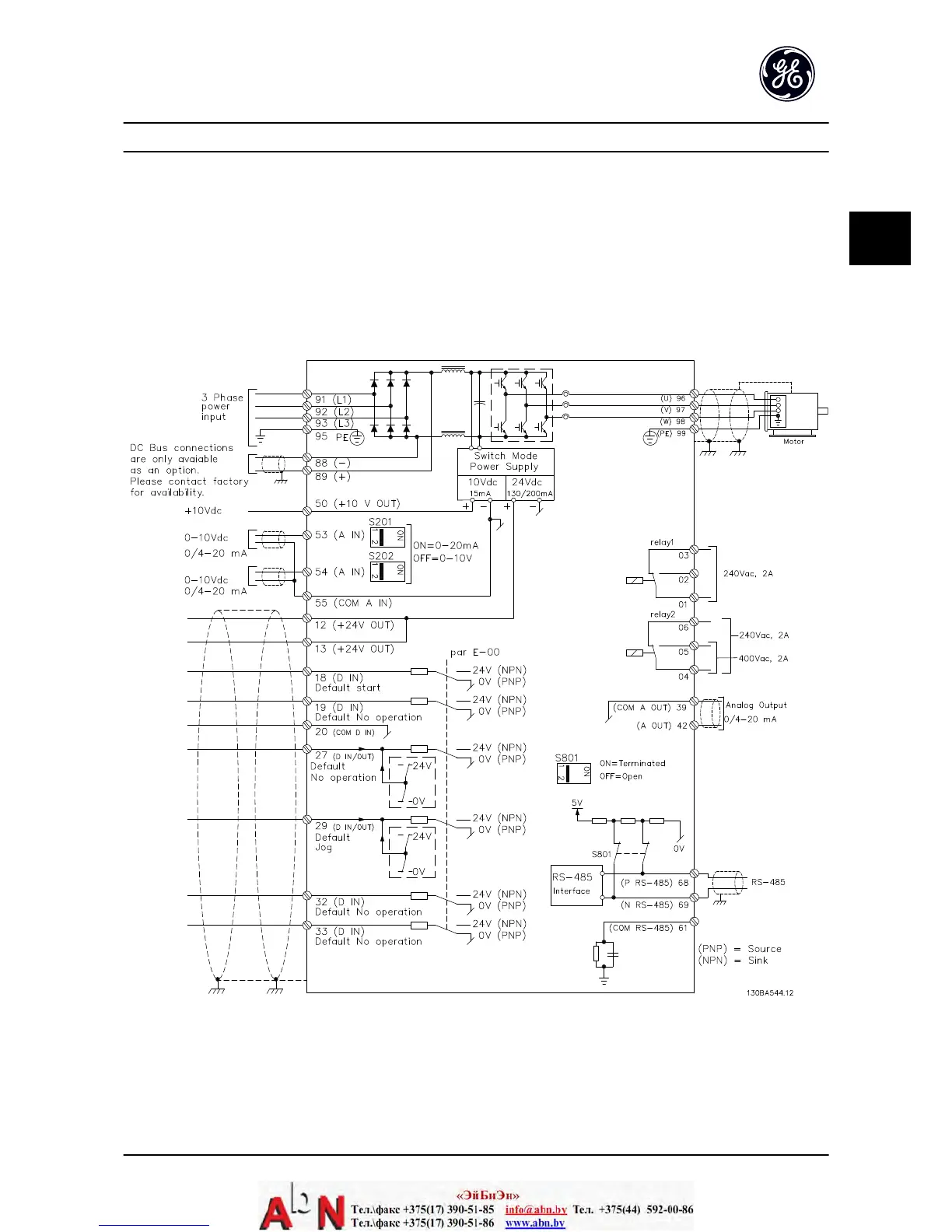
Figure 2.12 shows a basic electrical connection.
Figure 2.12 Basic Wiring Schematic Drawing.
Installation AF-600 FP Design and Installation Guide
DET-768A 2-7
2
2

Table of Contents

Other manuals for GE af-600 fp

Related product manuals