EasyManua.ls Logo

GE af-600 fp - Control Wiring; Access

GE af-600 fp
129 pages
Print Icon
To Next Page IconTo Next Page
To Next Page IconTo Next Page
To Previous Page IconTo Previous Page
To Previous Page IconTo Previous Page
Loading...
Figure 2.22 Unit Size 61
Figure 2.23 Unit Size 62
Figure 2.24 Unit Size 63
Figure 2.25 Unit Size 64
2.5.8 Control Wiring
Isolate control wiring from high power
components in the adjustable frequency drive.
If the adjustable frequency drive is connected to
a thermistor, for PELV isolation, optional
thermistor control wiring must be reinforced/
double insulated. A 24 V DC supply voltage is
recommended.
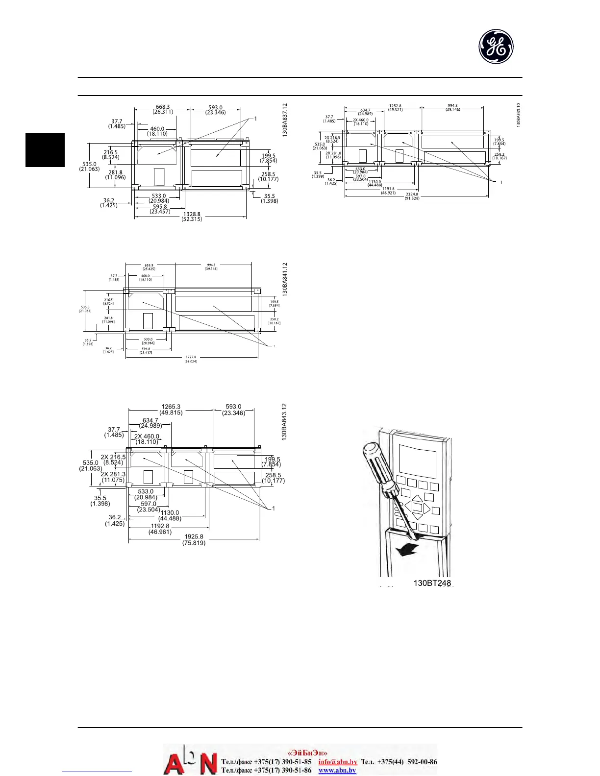
2.5.8.1 Access
Remove access cover plate with a screw driver.
See Figure 2.26.
Or remove front cover by loosening attaching
screws. See Figure 2.27.
Figure 2.26 Control Wiring Access for IP20/Open chassis
enclosures
Installation AF-600 FP Design and Installation Guide
2-12 DET-768A
2
2

Table of Contents

Other manuals for GE af-600 fp

Related product manuals