EasyManua.ls Logo

GE af-600 fp - Page 28

GE af-600 fp
129 pages
Print Icon
To Next Page IconTo Next Page
To Next Page IconTo Next Page
To Previous Page IconTo Previous Page
To Previous Page IconTo Previous Page
Loading...
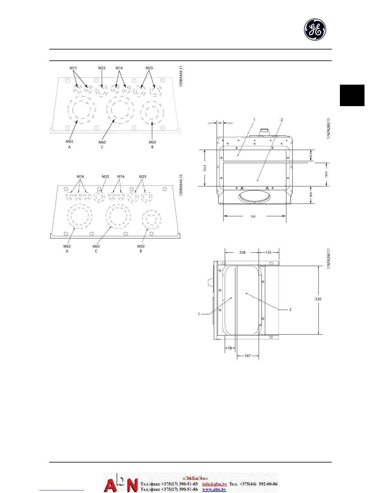
Figure 2.18 Cable entry holes for unit size 31
Figure 2.19 Cable entry holes for unit size 32
2.5.6 Removal of Knockouts for Extra
Cables
1. Remove the cable entry from the adjustable
frequency drive (this prevents foreign parts from
falling into the adjustable frequency drive when
removing knockouts)
2. The cable entry must be supported around the
knockout you intend to remove.
3. The knockout can now be removed with a strong
mandrel and a hammer.
4. Remove burrs from the hole.
5. Mount cable entry on adjustable frequency drive.
2.5.7 Connector/Conduit Entry(Unit Sizes
41, 42, and 51)
Cables are connected through the connector plate from
the bottom. Remove the plate and plan where to place the
entry for the connectors or conduits. Prepare holes in the
marked area on the drawing.
NOTE!
The connector plate must be fitted to the adjustable
frequency drive to ensure the specified protection degree,
as well as ensuring proper cooling of the unit. If the
connector plate is not mounted, the adjustable frequency
drive may trip on Alarm 69, Pwr. Card Temp
Figure 2.20 Unit Sizes 41 + 42
Figure 2.21 Unit Size 51
Installation AF-600 FP Design and Installation Guide
DET-768A 2-11
2
2

Table of Contents

Other manuals for GE af-600 fp

Related product manuals