EasyManua.ls Logo

GE Vivid E80 - Suggested floor plan, Ultrasound system, and EchoPAC PC in same room

GE Vivid E80
382 pages
Print Icon
To Next Page IconTo Next Page
To Next Page IconTo Next Page
To Previous Page IconTo Previous Page
To Previous Page IconTo Previous Page
Loading...
Facility needs
Vivid E80/E90/E95Service Manual 2-15
GC091052 Rev. 3
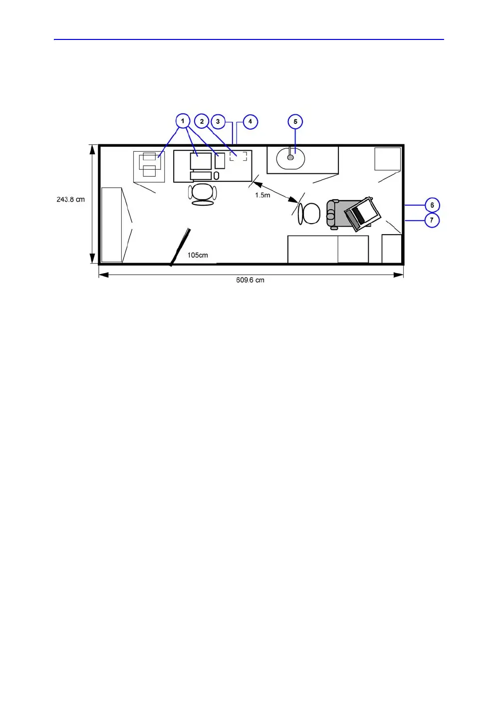
Suggested floor plan, Ultrasound system, and EchoPAC PC in same
room
Figure 2-3. Suggested Room with EchoPAC workstation and Ultrasound system
Networking setup requirements
Stand alone Ultrasound system (without network connection)
None.
Ultrasound system connected to hospital’s network
Supported networks:
10/100/1000 Mbit Ethernet/DICOM network (option)
InSite requirements
InSite requires an Ethernet connection either via:
10/100 Mbit or 10/100/1000 Mbit Interface
1. EchoPAC workstation parts
2. UPS
3. Ethernet network wall outlet
4. 3x mains power outlets
5. Hot and Cold water
6. Dedicated mains power
outlet
7. Ethernet network wall outlet

Table of Contents

Other manuals for GE Vivid E80

Related product manuals